ИМОТИ Премиер представя на вашето внимание модерна новострояща се къща с фронтална морска панорама, чист въздух и спокойна локация в близост до борова гора в кв. Виница.
🏡 Характеристики на имота:
РЗП: 243 кв.м
Двор: 523 кв.м
Етажност: 2 нива
Спални: 3 просторни спални
Паркоместа: 2 (с опция за зарядна станция за електромобил)
Статус: Вече с Акт 14 (напредващо строителство)
Срок за въвеждане в експлоатация: януари 2026 г.
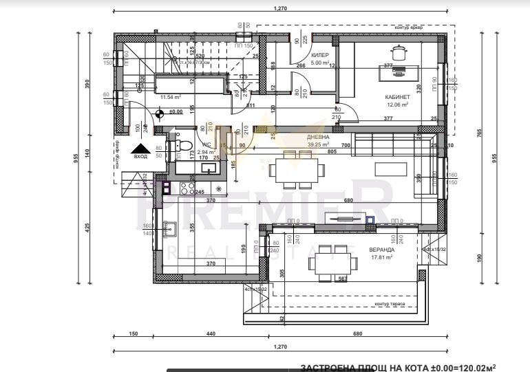
🔹 Разпределение:
Първо ниво:
входно антре,
просторна дневна 39,25 кв.м с излаз към веранда ~18 кв.м,
кабинет 12 кв.м,
килер/склад 5 кв.м.
Второ ниво:
спалня 14 кв.м със собствен дрешник 6 кв.м,
спалня 16 кв.м със собствена баня и дрешник,
спалня 17 кв.м с излаз към голяма тераса,
общ санитарен възел (баня + тоалетна).
🔹 Предимства:
нескриваема морска панорама,
смарт електронна система за контрол на електроинсталацията чрез мобилен телефон,
висок клас строителни материали и топлоизолация,
възможност за монтаж на фотоволтаична система на покрива,
ток и вода с индивидуални партиди,
канализация,
достъп по асфалтов път.
📍 Локация:
Имотът е разположен в тих и зелен район, в близост до гора и само на няколко минути с автомобил от града. В района има целогодишно обитаеми къщи, магазини, пазари, училище, детска градина и удобен редовен градски транспорт.
За повече информация и оглед позвънете на посочения телефон и цитирайте код : 348485
Виж всички обяви в imotipremier.bazar.bg или тук



