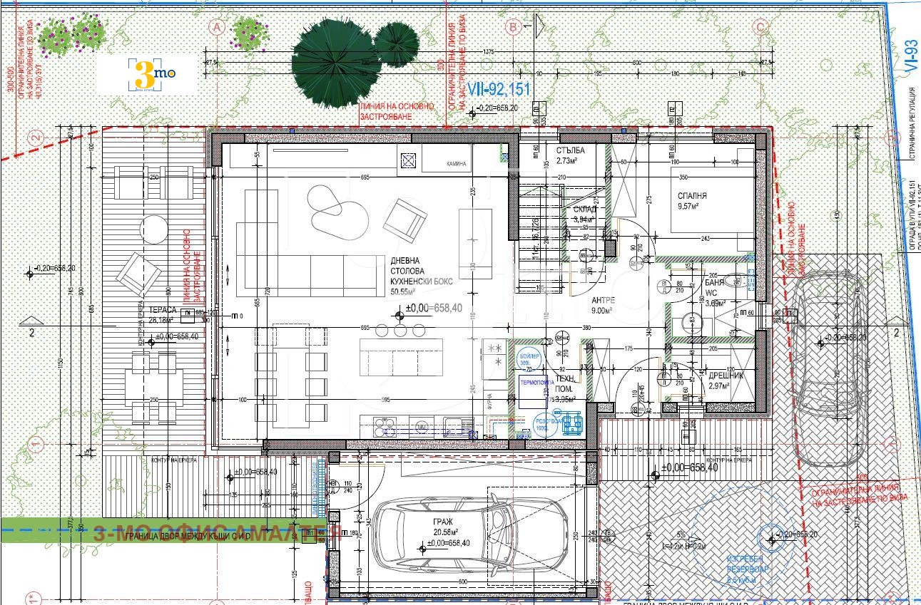
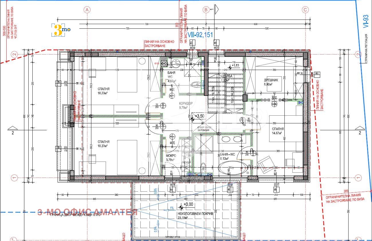
Къщата е на два етажа и е с РЗП 246,52 кв.м. (ЗП на 1-ви етаж-129,32 кв.м., ЗП на 2-ри етаж-117,20 кв.м.). Дворът е с квадратура от 333 кв.м.
Разпределението е както следва:
1-ви етаж - входно антре (9 кв.м.), дневна с трапезария и кухненски бокс (50,55 кв.м.), спалня/кабинет (9,57 кв.м.), дрешник/склад (2,97 кв.м.), техническо помещение (3,95 кв.м.), склад (3,94 кв.м.), баня с тоалетна (3,69 кв.м.), тераса (28,18 кв.м.) и стълби към втория етаж;
2-ри етаж - коридор (9,79 кв.м.), две спални от (18,33 кв.м.), родителска спалня (14,87 кв.м.) с баня с тоалетна (8,13 кв.м), отделна баня с тоалетна (4,67 кв.м.) и мокро помещение (3,79 кв.м.). Къщата разполага със собствен гараж (20,58 кв.м.).
Отоплението на сградата е локално чрез термопомпена климатична система- въздух/вода на електричество. Жилищната сграда ще бъде модерно изградена с най-висок клас материали.
Разрешение за ползване 2027г.
Конструкцията на сградата е монолитна със стоманобетонови колони, греди и плочи. Външните стени са от тухлена зидария с керамични тухли Porotherm.
Покривната конструкция е тип едноскатен покрив.
За мокрите помещения е предвиден влагоустойчив гипсокартон. Дограмата е алуминиева с трислоен стъклопакет. Фасадните стени се предвиждат да бъдат с облицовка от керамични елементи или имитиращи тухлена зидария.
Всяка къща е със самостоятелен вход през двора от общата алея за достъп. Дворът ще бъде прецизно оформен с озеленяване, алеи и плочи. Ще има и поливна система за лесна поддръжка на дворното пространство.
Комплексът ще бъде луксозно изграден с всички удобства за живущите. Ще съчетава спокойствие, тишина и уют, като същевременно е в близост до градска среда.
3mo Амалтея, заедно с лицензирания в БНБ кредитен посредник КРЕДИТ НАВИГАТОР, предоставят на своите клиенти възможност да изберат най-изгодния ипотечен кредит при закупуване на своето жилище. Услугата е БЕЗПЛАТНА.
Оферта 936
Виж всички обяви в amaltea.bazar.bg или тук
        
       
         
         
         
         
         
         
         
         
         
         
             
             
             
             
             
             
             
             
             
            





