LUXIMMO FINEST ESTATES: www.luximmo.bg
В процес на строителство. 6 Етапа.
Очакван Акт 16 - март 2027 г. - Етап 1 и 2.
Представяме за продажба двуетажна къща в нов, модерен комплекс за целогодишно обитаване, разположен на уникално място между три живописни плажа в кв. 'Крайморие', Бургас. В непосредствена близост до плажната ивица, сред чист въздух и уединение, същевременно само на 6 км от центъра на града.
Параметри на имота
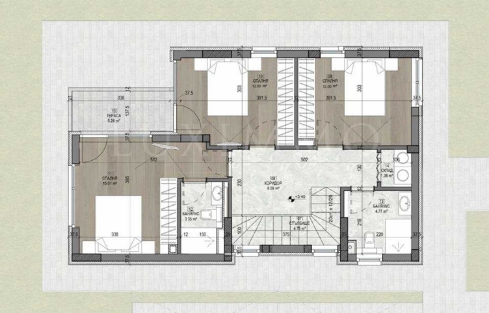
Къщата е от тип Б1 с РЗП - 176,47 кв.м, ситуирана върху двор с площ от 330,24 кв.м с две паркоместа.
Разпределение:
етаж 1: антре, дневна с кухня, санитарно помещение, склад, веранда;
етаж 2: три спални, склад, две бани с тоалет, тераса.
Има възможност за преустройство на помещенията на първия етаж и обособяване на още една спалня.
Имотите се издават в степен на завършеност по БДС, на шпакловка и замазка.
Технически характеристики:
сградите се изпълнява с монолитна, стоманобетонна, безгредова конструкция;
стените се изпълняват с керамични тухли Wienerberger Porotherm 25 см. за фасадните и 12 см. за вътрешните преградни стени;
сградата е изцяло топлоизолирана с 12 см. EPS, 6 см. XPS за фундаменти, 15 см. XPS за покриви;
фасадна минерална мазилка в цвят бял/ графит Baumit;
фасадна облицовка от синтерован камък с различни декори;
парапетите по терасите са с пано от закалено стъкло;
дограмата е висококачествено PVC /за къщи тип В, Г и Д/ и алуминиева дограма /за къщи;
тип А, Б и Б1/ в цвят, растер и отваряемост съгласно архитектурен проект;
Възможност за поставяне на по-висок клас дограма;
хидроизолационна вана за фундамента на сградата;
високоустойчива хидроизолация за покрива, два пласта, с UV защита;
мазана хидроизолация за терасите;
релефен, мразоустойчив гранитогрес по терасите;
...
Цената на имота е 306 000 евро / 598 483.98 лв. без ДДС или 367 200 евро / 718 180.78 лв. с ДДС. Данъчен кредит може да се ползва при определени условия.
За повече информация свържете се с нас и цитирайте референтния номер на имота. Моля, кажете, че сте видeли обявата в този сайт.
Референтен номер: LXH-134867
Тел: 0887 420 783, 056 701 465
Отговорен брокер:Теодора Иванова
Без комисиона от купувача







