ХАРАКТЕРИСТИКИ НА ИМОТА
РЗП:300 кв.м.
Парцел:1048 кв.м.
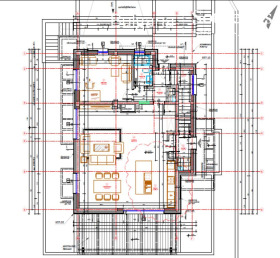
Първи етаж: входно антре; хол с трапезария и кухненска част с директен излаз към градината; самостоятелна спалня; санитарен възел за етажа.
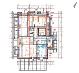
Втори етаж: антре; две самостоятелни спални; санитарен възел; спалня със собствена гардеробна и санитарен възел.
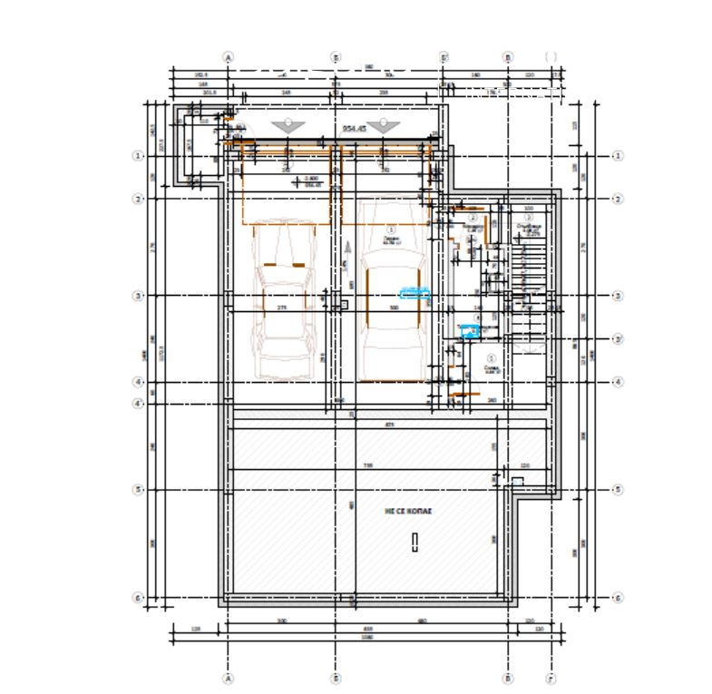
Сутерен: паркоместа за до 4 автомобила, избено помещение.
ТЕХНИЧЕСКИ ХАРАКТЕРИСТИКИ
1.Преди акт 16 – 775 000 ЕВРО
Ел и ВИК инсталации;
Изцяло окабеляване за СОТ и видеонаблюдение;
Вътрешна мазилка;
Външна Топлоизолация;
Пречиствателна станция модел One2Clean 5, производство на фирма GRAF – Германия.;
Резервоар Carat S 3750 л + Система за дъждовна вода Garden Comfort, производство на фирма GRAF – Германия. Свързан е с кладенец с постоянен воден капацитет;
Подравнен и изчистен двор;
Завършена и отводнена рампа (без настилка) към гараж
Завършена рампа (без настилка) към централен ход
Подготвени за настилка пътеки около къщата.
2.След Акт 16 – 880 000 ЕВРО
Завършени части надграждащи по-горните;
Вътрешна завършеност на мазилка и замазка по БДС;
Поставена инсталация за подово отопление без термопомпа;
ВИК на тапи;
Завършена фасада по проект с каменни и дървени облицовки;
Външни рамки по дограмата с подготовка за външни ламелни щори;
Гаражни автоматични врати HORMAN;
Входна врата;
Завършени с подова настилка на рампи към гараж, централен вход, както и пътеки около къщата;
Ламелни ограда , гаражни врати и входна врата по улицата;
Метални огради с трите съседни имота.
3.Полузавършен вид след Акт 16 – 990 000 ЕВРО
Завършени части надграждащи по-горните;
Фина шпакловка вътрешни стени;
Интериорни врати;
Подова настилка първи етап от гранитогрес плочи 120x120 см. PORCELANOSA;
Подова настилка Linkfloor – PORCELANOSA;
Завършени бани с първокачествени материали и санитария на PORCELANOSA (изпращам ви проекти по WeTransfer);
Подова замазка в гаражите;
Поставени Ел ключове и контакти;
Поставени датчици и камери за СОТ;
Поставена кухня, като синтерования камък за плотове и вратички ще са пожелания на купувача;
Вътрешни дървени рамки по прозорците в хола и трапезарията;
Поставени външни автоматизирани ламелни щори;
Поставено ?
Виж всички обяви в bulgariasir.bazar.bg или тук
        
       
         
         
         
         
         
         
         
         
         
         
         
         
         
         
             
             
             
             
             
             
             
             
             
             
             
             
             
            






