Село Палици отстои само на 13 км. от град Елена и на 50 км. от град Велико Търново. Разположено е на висок рид, който служи за вододел между реките Костелска и Бебровска. Районът предлага уникална природа и чист планински въздух. Язовирът на село Палици е зарибен с шаран и бяла риба. Чудесна възможност за риболов в свободното време. На 5-6 км се намира горната част на Костелската река, където има условия за къмпинг.
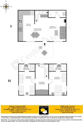
Двуетажната, реновирана къща е със застроена площ от 120 кв.м. Първият етаж се състои от просторна стая, в която са обособени кухня, трапезария и дневна, и санитарен възел. Вътрешни стълби отвеждат до втория етаж, който помещава коридор, с голям дрешник и две уютни, и светли спални, всяка от които със собствена баня/тоалетна.
Къщата е в отлично състояние- след направен основен ремонт. Интериорът е в следната степен на завършеност: дограмата е дървена с термомост, интериорните врати са също от дърво, а подовете са с дюшеме и гранитогрес. Отоплението е посредством камина на дърва и климатици.
Дворът е 850 кв.м., ограден с дървена/ телена ограда.
Селото е малко, но добре уредено. Има читалище и магазини.Имотът е подходящ за постоянно живеене, тъй като се намира в непосредствена близост до град Елена.
Къщата се продава напълно обзаведена и готова да посрещне новите си собственици.
За да разгледате виртуален тур, моля копирайте и поставете линка във Вашия браузер
ВИРТУАЛЕН ТУР:https://app.cloudpano.com/tours/LUrg1jJuD
РЕФ. :125177







