Къща с модерна архитектура на степен Акт 14. Имотът има следното разпределение:
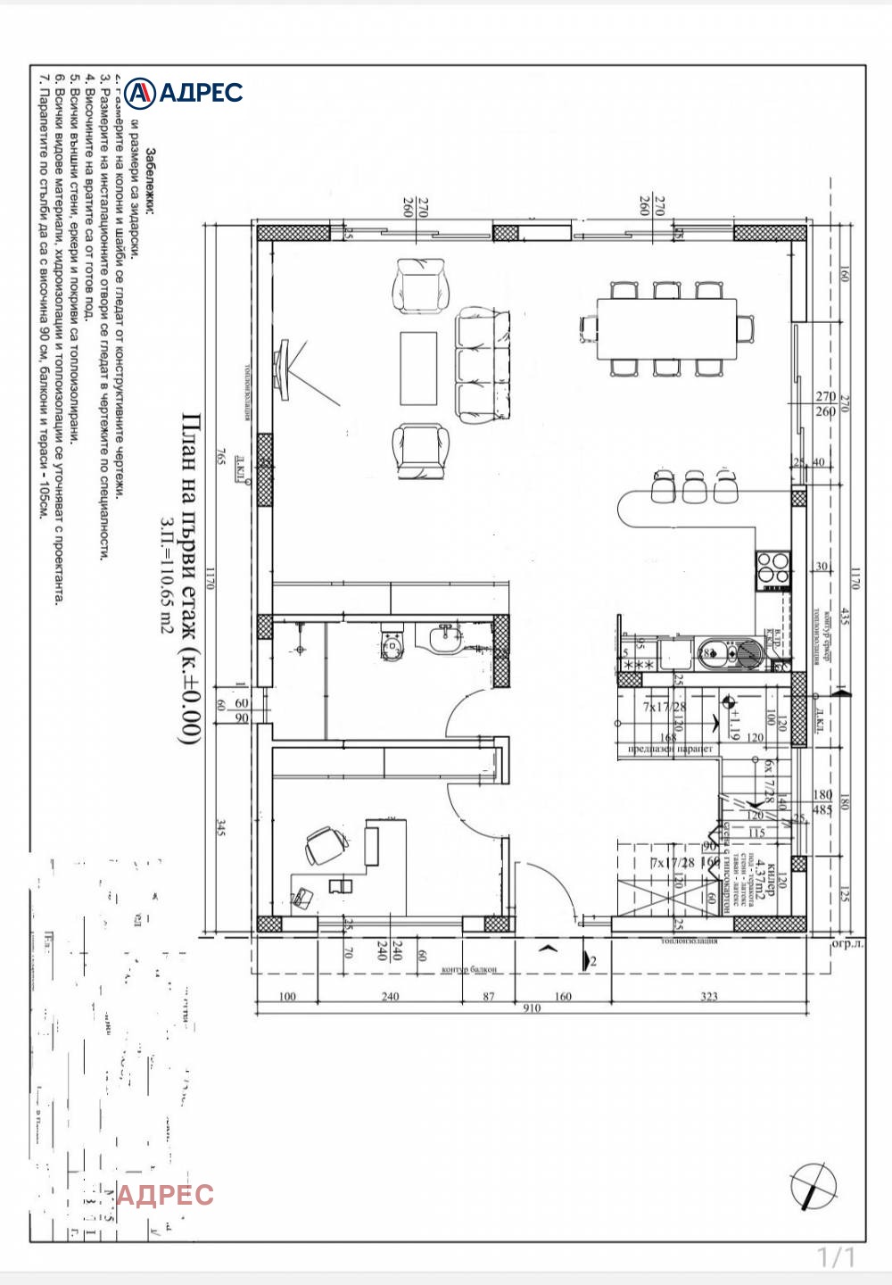
Първи етаж: просторен и слънчев дневен тракт с френски прозорци и камина, баня с тоалетна, кабинет/спалня, стълбище към втория етаж, подстълбищно пространство.
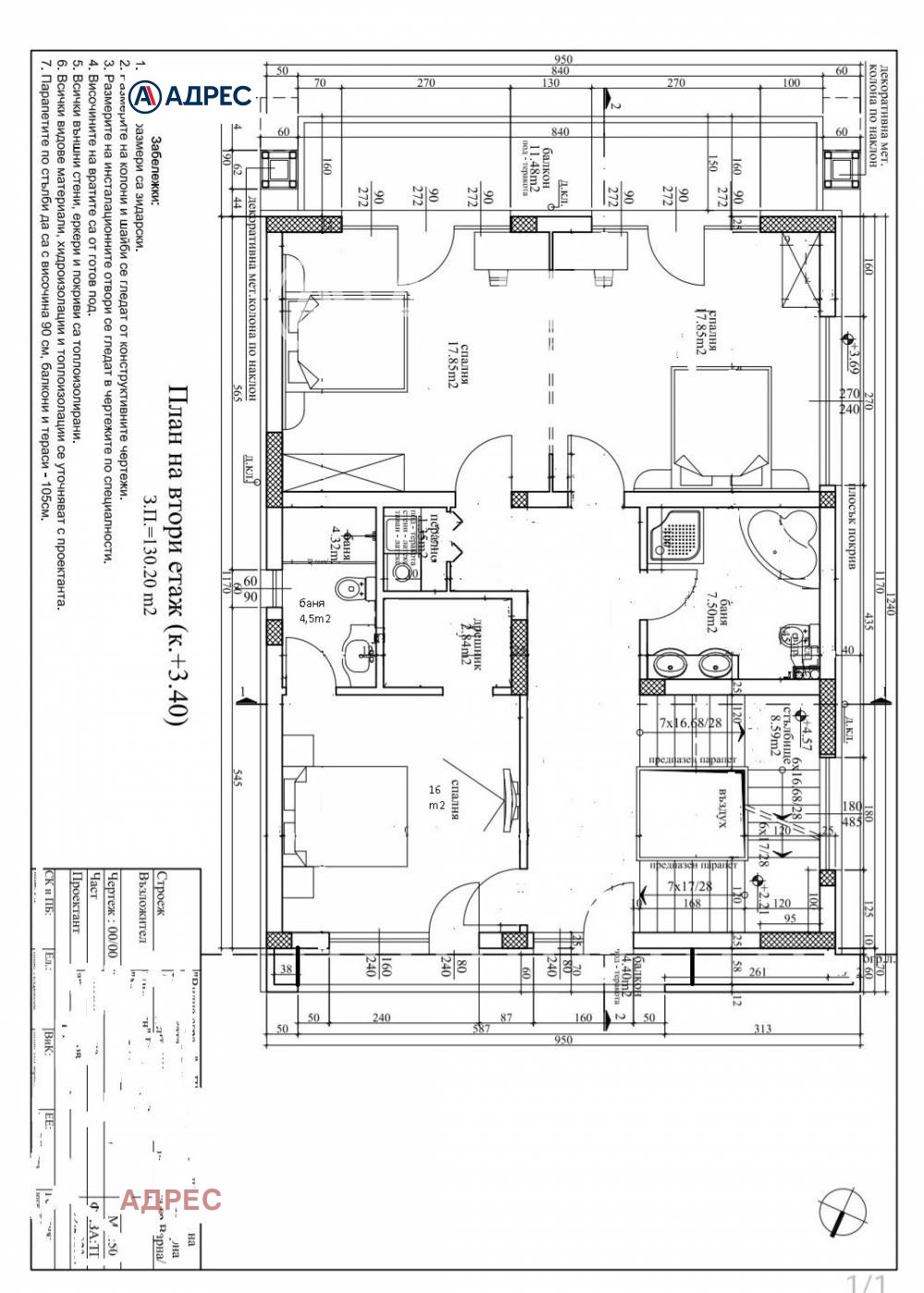
Втори етаж: родителска спалня със собствена баня, две спални, баня с тоалетна и голяма тераса.
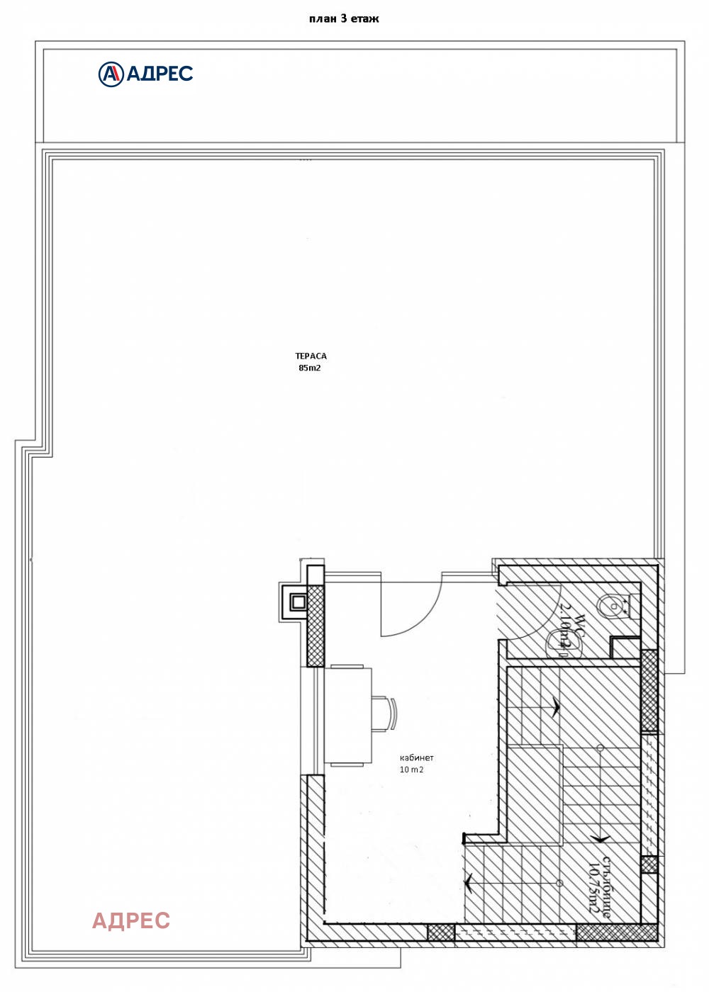
Трети етаж: кабинет/спалня, баня и тоалетна и тераса с прекрасна гледка към морето.
Достъпа до имота е по асфалтов път.
Къщата ще се издаде по БДС като има възможност да се довърши и до ключ спрямо желанията на клиента.
Отлична локация, много простор и тишина. Намират се в близост до Резиденция Евксиноград, спирка и главен път Варна - Златни пясъци.
Къщата е построена с най-висок клас строителни материали.
- висококачествено строителство;
- топ локация;
- реална квадратура;
- възможно преустройство спрямо предпочитанията на клиента.
Обади се сега и цитирай този код 666293







