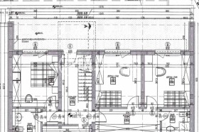
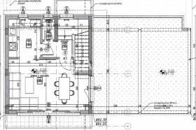
Комплекс от затворен тип, състоящ се от пет еднофамилни къщи с вътрешен двор. На първия етаж са разположени 3 спални, две бани с тоалетни и складово помещение. На втория етаж има кухненски бокс и трапезария, тоалетна и голям хол с панорамна гледка към София. Живописен и слънчев район, идеален за спокоен семеен живот, сред чист въздух.
Ексклузивна локация- само на 10 минути от динамиката на града. Има спирка на градски транспорт точно пред комплекса.
Изпълнението на къщите е с най- качествените съвременни системи и
материали. Отоплението е локално, с подово отопление, термопомпи,
бойлери и конвектори за охлаждане.
Локация - тихо и спокойно място, на 10 мин от динамиката на града!
Простони помещения и собствен двор!
Градски транспорт пред комплекса!
Обади се сега и цитирай този код 667831







