AKT 16!! ПОДОВО ОТОПЛЕНИЕ!! ПЕРФЕКТНА ИНФРАСТРУКТУРА!! ГОЛЯМ ДВОР!! DELTA HILL!!
Предлагаме на Вашето внимание нови къщи в луксозния и реномиран комплекс Delta Hill комфорт, сигурност и природа в близост до София!
Всички имоти са с:
подово отопление
подготвена инсталация за термопомпи въздух-вода
изградена канализация
тухли Wienerberger, мазилка Baumit, керемиди Bramac.
висок клас дограма Salamander
перфектна инфраструктура
Комплексът предлага охрана, зелени площи, спортни и детски площадки, супермаркет и ресторанти.
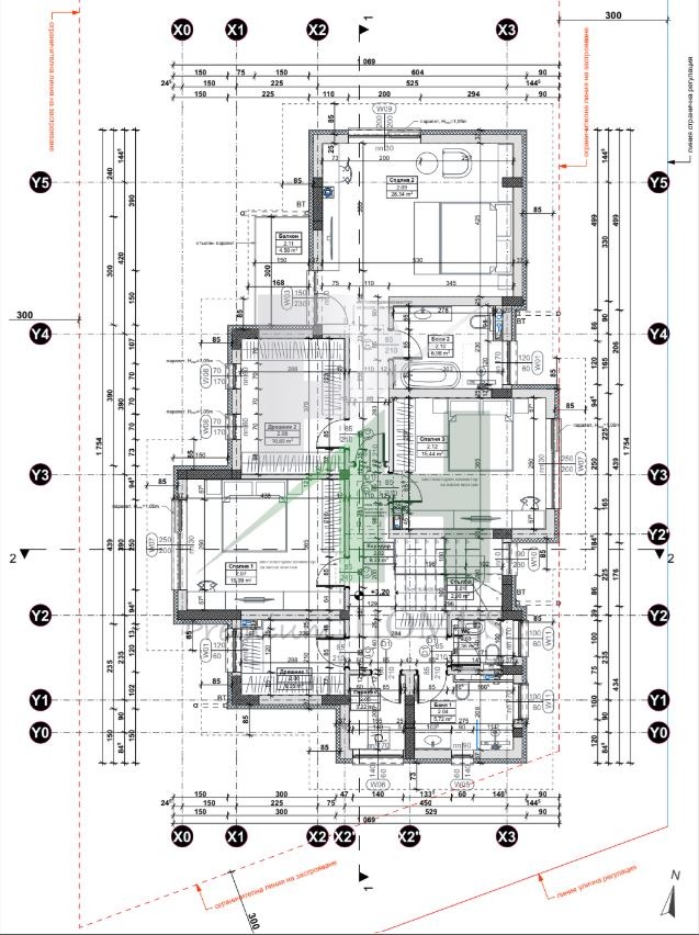
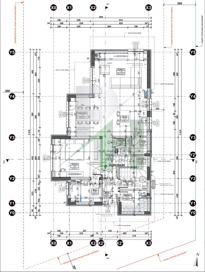
Технически параметри на конкретната къща:
Разгърната застроена площ: 261 кв.м
Парцел: 900 кв.м
Разпределение:
първи етаж: входно антре, дневна с трапезария и кухня, баня, тоалетна, дрешник, техн. пом., склад,
втори етаж: 3бр спални, 2бр. бани с тоалетни, 2бр., балкон, 2бр. гардеробни, перално помщение
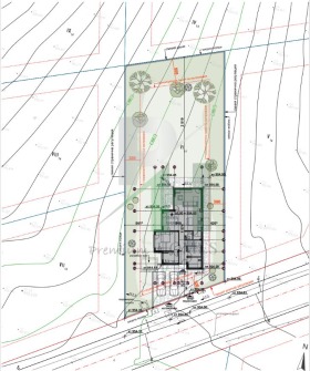
Двор: озеленен, с възможност за басейн и барбекю зона.
Прилагаме технически чертеж с разпределението на имота.
За да запишете час за оглед ни се обадете сега и цитирайте следния код: 713
Виж всички обяви в premiumhomes.bazar.bg или тук

