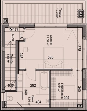
Бутиков затворен комплекс от 6 еднофамилни къщи.Намира се в района на Киноцентър I част , на терен от 2 137 кв.м.Къщата е на четири етажа, от които три надземни жилищни и един полуподземен етаж ,като при конкретната къща полуподземното ниво е с английски прозорец и възможност за фитнес/изба/стаи, а две паркоместа са осигурени на кота терен със самостоятелен достъп директно от улицата.Разполага с: обширна дневна с трапезария и кухня; 4 спални и работен кабинет и/или гардеробно помещение, 3 бани с WC и отделна WC за гости до дневната; мокро помещение за пералня, сушилня и гладачна маса; складови помещения; техническо помещение; тераси с чудесни гледки към Витоша и към София; самостоятелен двор с декинг за барбекю зона;Светла височина на приземен етаж е 2,90 м., на останалите жилищни етажи е 2,70 м., а на подземния етаж е 2,60 м.Зидария с преграждащи стени от керамични тухли Wienerberger Porotherm 25 P+F.Двойна хидроизолация и 8 см. XPS в зоната на сутерена и приземния етаж, както и 20см EPS в зоните на останалите надземни етажи.Дограмата е алуминиева, с трислоен стъклопакет и прекъснат термо-мост Schüco Window System AWS 75 BS.HI+ (Block System High Insulation) и Schüco ASE 80. За огледи 0988870990







