HOLDING GROUP REAL ESTATE представя:
Нова еднофамилна къща със собствен двор. АКТ 14! ПОДХОДЯЩА ЗА КРЕДИТИРАНЕ!
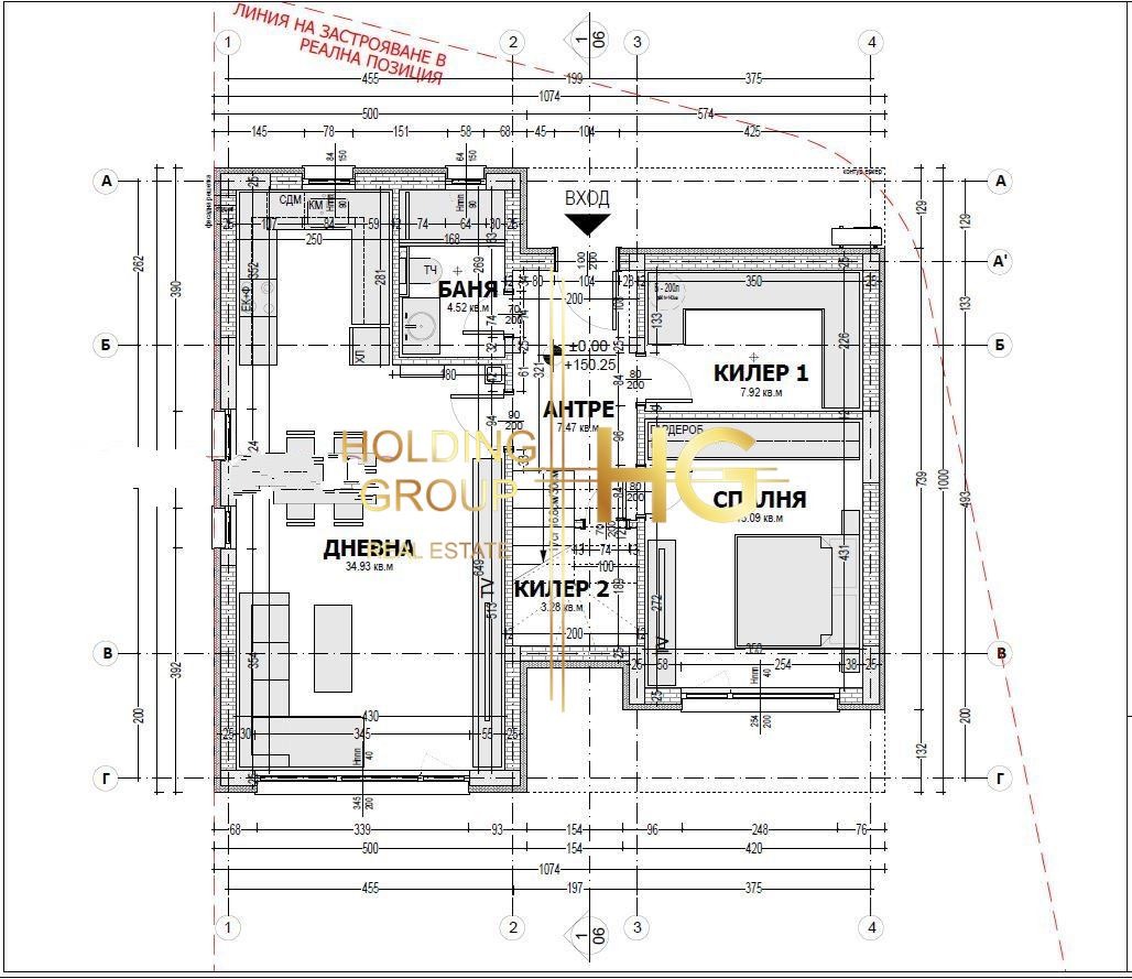
Жилищна площ: 198 кв.м
Двор: 451 кв.м самостоятелен, ограден.
Паркоместа: Да
Строителство започва: юни 2025
Строител: доказан и реномиран изпълнител
Проект със съвременно разпределение и качествено строителство.
Конструкция и материали: Монолитна, стоманобетонова конструкция.
Зидария: тухли Ортоблок с вертикални кухини.
Покрив: стоманобетонна плоча с керемиди.
Топлоизолация: 10 см външна система + силикатна мазилка.
Самостоятелен двор с ограда и възможност за озеленяване.
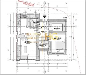
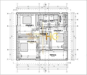
Разпределение на къщата:
Първи етаж: входно антре, просторна дневна с кухненски бокс с излаз към външна тераса и двор, баня с тоалетна, два килера, стълбище към втори етаж.
Втори етаж: централен коридор, спалня 1 със собствена баня и дрешник, спалня 2 с отделна баня с тоалетна, перално помещение.
Двураменна интериорна стълба осигурява комуникацията между етажите
Предимства на имота:
Ново строителство от доверен строител.
Самостоятелна къща с двор и паркоместа.
Функционално разпределение и модерна архитектура.
Тиха и удобна локация, само на 10 минути от центъра на Варна.
Възможност за избор на довършителни материали по време на строителството.
Ако желаете да закупите Вашият бъдещ дом с банково финансиране на най-добри условия, може да разчитате на нас за пълно съдействие и организация през целия процес.
Ние ще бъдем до Вас през цялото време и до самото финализиране на сделката
За повече информация и огледи се обадете на посочения телефон и цитирайте кода на офертата: Код 7022.







