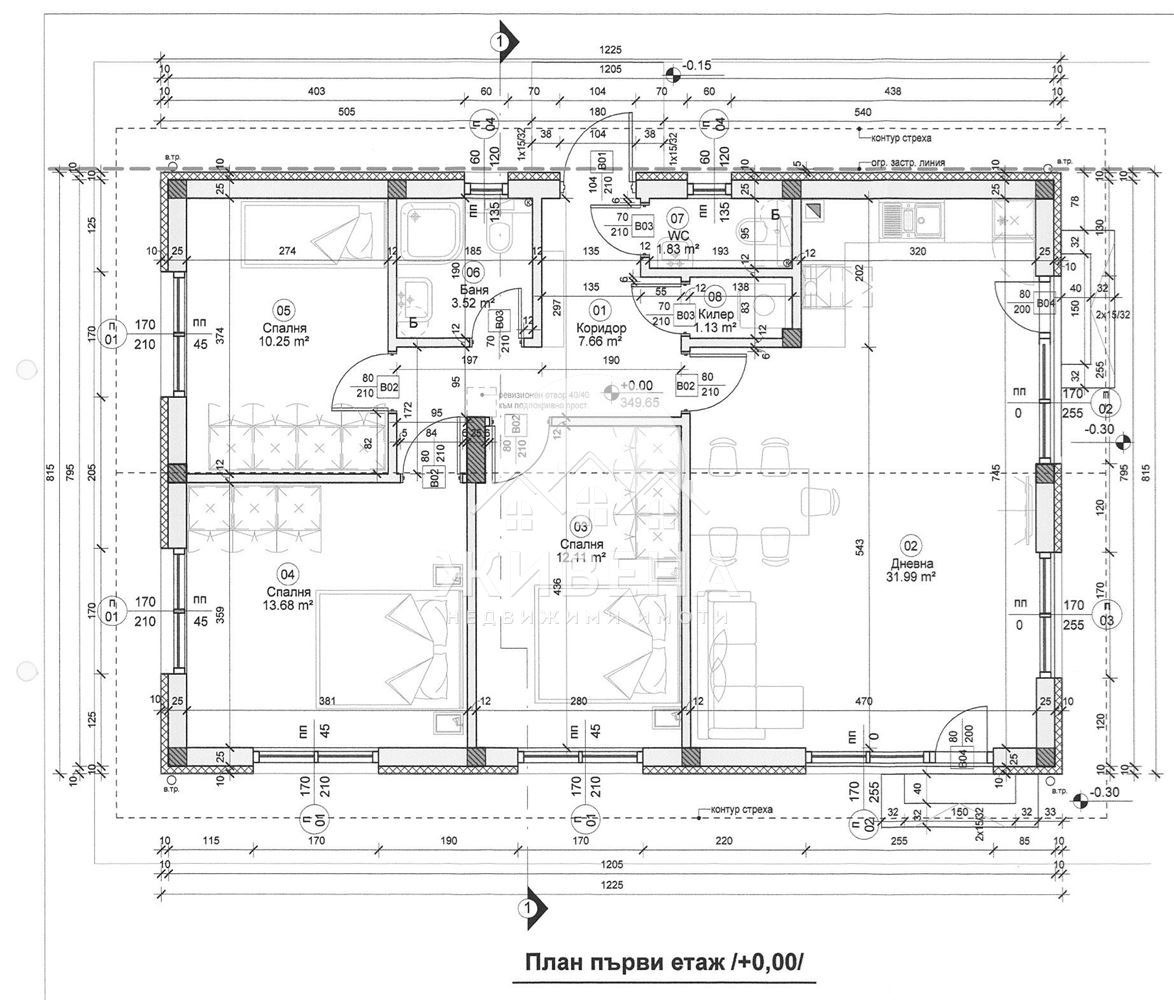
Агенция Живена предлага за продажба нова самостоятелна еднофамилна къща, монолитно строителство, въведена в експлоатация с Акт 16, в село Баново, общ. Суворово, обл. Варна. Къщата е разположена на един етаж, с РЗП: 99.80 кв.м и със следното разпределение: коридор, дневна (32 кв.м) с големи френски прозорци за повече естествена светлина, 3 спални (13.68 кв.м, 12.21 кв.м и 10.25 кв.м), 2 санитарни помещения, килер и веранда. Изложението е ориентирано на Югозапад. Завършена е в състояние До ключ: боядисани в бяло стени и тавани, с поставени подови настилки - ламинат, завършени бани (без санитарно обзавеждане), 5-камерна PVC дограма Rehau - 4 сезона, нови интериорни и входна врати, топлоизолация - 10 см. Парцелът е с площ от 815 кв.м, изравнен и ограден с висока масивна ограда. В двора е предвидено място за паркиране на два автомобила. Има достатъчно пространство за изграждане на басейн, барбекю зона, допълнителни постройки, обособяване на градина, детски кът и др. Изградени са ВиК и Ел. инсталации (със собствени партиди), също и голяма септична яма. Имотът е с добър достъп. Къщата е изградена с тухлени зидове, външна топлоизолация, замазка с фибростъклена мрежа и силикатна мазилка. Стените в стаите са завършени с варогипсова мазилка, гипсова шпакловка и латекс. Подът е изпълнен с машинно уплътнен насип, пясъчно легло, подл. бетон/фундаментна плоча, хидроизолация, XPS/фибран - 6 см, арм.бет. настилка, циментова замазка, подложка и ламинат. Покривът е с пожароустойчив гипсокартон, топлоизолация, дърв. покривна конструкция, дъсчена обвивка, хидроизолация, контра летви, керамични керемиди. Село Баново е предпочитано място за целогодишно живеене, разполага с голям хранителен магазин, ресторант и медицинско обслужване. Намира се в район с добра инфраструктура, нови къщи, зеленина, спокойствие и чист въздух, само на 21 км от град Варна. Агенция ЖИВЕНА извършва необходимите проверки на имота и организира всички етапи на сделката до нейното финализиране. Оказваме съдействие за отпускане на банков кредит. Оферта 6639







