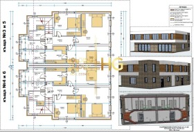
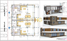
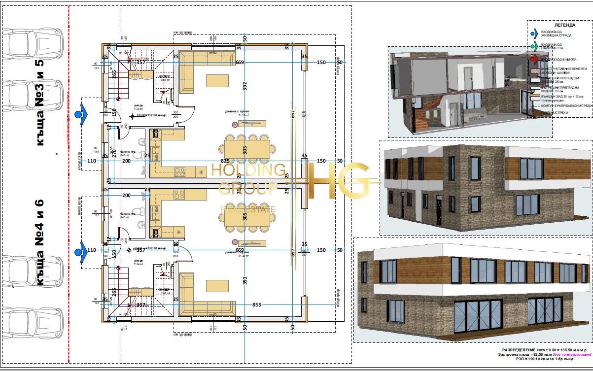
HOLDING GROUP real estate представя на Вашето внимание новострояща се двуетажна къща в кв. Галата, м-ст Прибой.
Ситуирана е на два етажа и е със следното разпределение:
етаж едно се състои от входно антре 7,24 кв.м., дневен тракт с обособени кухненска и трапезна част 51,33 кв.м., килер 2,68 кв.м., баня с тоалетна 5,40 кв.м. и стълби към втори етаж;
етаж две се състои от коридор 6,72 кв.м., първа спалня с площ от 12,65 кв.м., втора спалня с площ от 20,53 кв.м., трета спалня с площ от 17,57 кв.м. със собствени дрешник 7,77 кв.м. и баня с тоалетна 6,6, кв.м., общо мокро помещение за етажа с площ от 5,21 кв.м. и перално помещение.
Къщата е част от комплекс от осем къщи, всяка с прилежащ двор в реална съсобственост от около 250 кв.м. и с по две прилежащи паркоместа.
Ще бъде завършена по БДС - положени финна шпакловка и замазка, окачени фасади, декоративен камък, дворът ще бъде ограден с жив плет, а пътеките ще бъдат изградени.
Асфалтов достъп. Имотът се намира на около километър от обръщача на автобуса в кв. Галата. Лесен и бърз достъп до града и близките красиви плажове.
За повече информация и огледи, моля обадете се на посоченият телефонен номер и цитирайте кода на офертата.
Код на офертата 2952.







