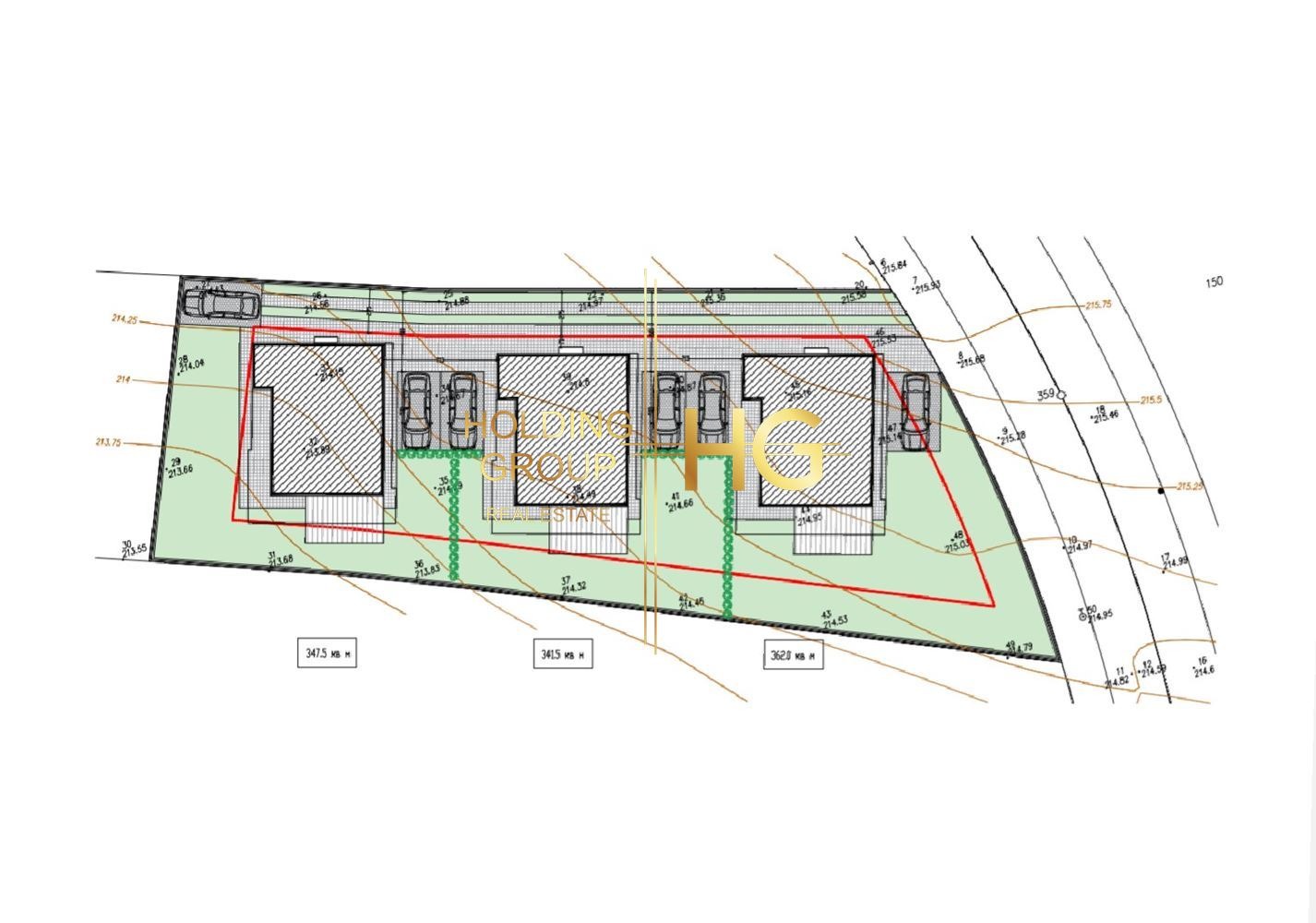
HOLDING GROUP real estate представя на Вашето внимание двуетажна новопостроена се къща в м-ст Боровец Юг. Тя е част от комплекс, състоящ се от три идентични къщи. Разгънатата застроена площ на този чудесен дом е 169,10 кв.м. и е със следното разпределение: Първият етаж се състои от входно антре, хубава дневна с кухня и трапезария, баня с тоалетна, килер и складово помещение. Вътрешно стълбище ни отвежда към Втори етаж, където са ситуирани три просторни спални, /като едната е със собствен санитарен възел и тераса/, още една баня с тоалетна за етажа и тераса за другите две спални, перално помещение и коридор. Изложението на къщата е И/Юг/З и отстои на около 70 метра от главен път, спирка на градски транспорт, магазин ..... Съседната къща е с А 16, завършена до ключ, с оборудвани бани и тоалетни, с монтирано подово отопление, бойлер. Цената й е 327 000Е.
Строителството е извършено с изключително качествени материали:
- Kерамични зидарски блокове с вертикални отвори за по-добра топлоизолация - ( WIENEREBERGER / CLIMATON ).
- Топлоизолационна система (CERESIT / BAUMIT)
- Пвц / алуминиева дограма с троен стъклопакет включващ Енерджи и КА стъкла.
- Покрив топлоизолация Фибран / Каменна вата, крайно покритие PVC / TPO мембрана SIKA.
Къщата е с А 14 и ще бъде завършена, съгласно БДС, но при желание от страна новите собственици може да бъде завършена до ключ. Монтирана е пречиствателна станция.
Към имота има паркомясто.
Ако търсите просторен имот, заобиколен от зеленина, далеч от градският шум, на крачка от най-красивите плажове на Варна, но в същото време с бърз и лесен достъп до главния път, то този имот е точно за Вас! За огледи, моля да се обадите на посоченият телефонен номер и да цитирате кода на офертата.
Код на офертата 2736







