'Real Deal' представя на Вашето внимание : ексклузивна оферта РД - 24208
Новостроящи се монолитни къщи с просторни самостоятелни дворове в с. 'Нови хан'. Прекрасна локация сред зеленина, глеки към планите, спокойствие и тишина. На 10-15 минути с кола от София , в бързоразвиващ се район с училище, детска градина, адекватна инфраструктура, транспорт магазини и всичко необходимо.
Имотите представляват 4 големи самостоятелни къщи, всяка с по около 800 кв.м. двор и тупик(подход към гаражите) . Всяка от къщите разполага с огромна всекидневна и лятна кухня, сомостоятелна постройка за барбекю, закрити гаражи и няколко допълнителни паркоместа.
Качествено строителство, с висок клас материали : всяка от къщите разполага с 10 kw фотоволтаична система с батерии, с възможност за увеличаване на капацитета по желание на клиента, термопомпа за отопление и охлаждане, подово на двата етажа, вътрешна камина, собствена пречиствателна станция. Топлоизолацията ще бъде изпълнена с XPS плочи, минерална вата на стени и покрив. 7 камерна дограма на
Kömmerling - антрацит; тухли на Wienerberger; Инвеститорът строи една от къщите за собствено ползване и на обектите няма да се пести от материали.
Последни две къщи налични за покупка !
Гъвкави смеми на плащане както със собствени средства, така и с банков кредит - съобразени с възможностите на клиента.
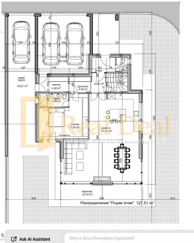
Големи, просторни и светли помещения : за детайлна информация са приложени архитектурите с разпределение и точни квадратури !
Първо ниво : голям затворен гараж с топла връзка, 72 кв.м 'навес за коли' с опция за няколко паркоместа, входно антре, зимник, дрешник , 1 спалня 18 кв.м. със самостоятелна бяна, голяма всекидневна (61 кв.м.) + веранда 22 кв.м. , отделна законна постройка за барбекю/лятна кухня и голям, самостоятелен и равен двор.
Второ ниво : още 3 големи спални по 18 квм.(общо 4 спални), още 3 бани (общо 4 бани)
Квадратури, РЗП, ЗП и двор:
Застроена площ 1 етаж : 134.60 кв.м.
Застроена площ навес за коли : 77.10 кв.м.
Застроена площ - втори етаж 99.65 кв.м.
Общо РЗП 321.37 кв.м.
Застроена площ лятна кухня : 31.29 кв.м.
Общо РЗП + лятна кухня = 352.52 кв.м.
Възможност за промени и преустройства в хода на сторителството спрямо желанията на клиента. Възможност за извършване на качествени довършителните работи от бригата на инвеститора и максимално бързо нанасяне в къщата. Къщите вече са с положени основи и се работи активно. Акт 14 пролетта на 2026, акт 16 пролеттна 2027г.
Възможен коментар на цената след направен оглед и с оставяне на резервационен депозит !
Агенцията работи САМО с актуални обяви!
За повече актуални обяви посетете нашия сайт: www.realdeal.bg
За повече информация и огледи: Божидар Зашев 0889402968



