Висок клас затворен жилищен комплекс във в.з. Бистрица, който се характеризира с устойчива архитектура, модерен прагматизъм и солидно строителство.
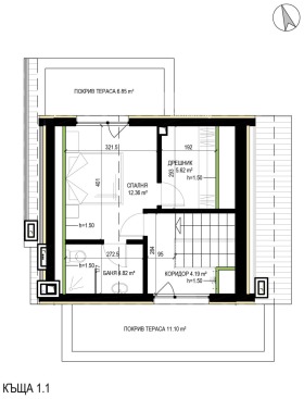
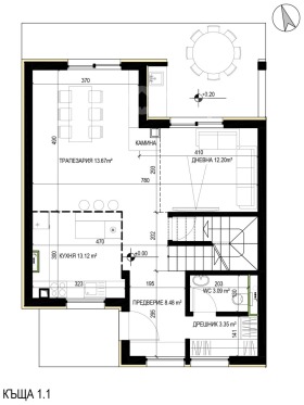
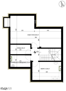
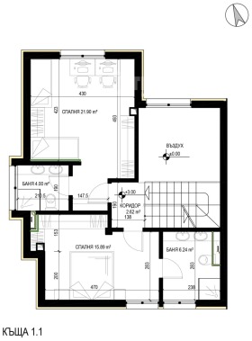
Къща 3.2 се състои от партерно ниво с обособен хол, трапезарна и кухненска част, излаз към веранда, санитарни и помощни помещения, на първи етаж са разположени две просторни спални, всяка със собствена баня, третото ниво е обособено като самостоятелна стая с дрешник и санитарно помещение, както и панорамна покривна тераса. На полусутерен имаме хоби стая със санитарно помещение и обслужващи пространства.
Разположен е в зона с нискоетажно застрояване. Тихо и спокойно място, със зеленина, по-чист въздух и изглед към София и Витоша. Съседните частни имоти не просто подобряват естетиката на квартала, но и повишават цената на имотите, като гарантират добрата ликвидност на къщите в комплекса.
100% Stress Free жилищна среда, която напълно усвоява всички предимства на заобикалящата природа и на феноменалната гледка към София. Проектът е замислен като притежаващ собствен специфичен микроклимат, предпоставка да се изгради малка и сплотена общност.
Собствен заден двор, сепариран с жив плет - място за отдих и забавление. Собствена барбекю зона. Място за паркиране на един или повече от един автомобил.
Панорамна, широкоспектърна гледка към София на север и Витоша на юг, които няма да бъдат закрити от високо строителство.
Уникален терен и разчупено шахматно разположение на отделните къщи, което осигурява завладяваща гледка от всяка от къщите. Френски прозорци във всяко помещение за непрекъснат контакт с елегантния ландшафт.
Удобен автомобилен достъп, както и възможност за ползване на градски транспорт.
... Обади се сега и цитирай този код 655083







