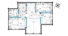
Предложената къща ще е с разгърната застроена площ от 288 кв.м. и със следното разпределение:
Сутерен, състоящ се от: двоен гараж (61 кв.м), техническо помещение (12.40 кв.м), входно пространство (6.7 кв.м), перално помещение и склад (5.20 кв.м) и стълбище (7.60 кв.м);
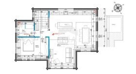
Първи етаж (кота 0), състоящ се от: стълбище с преддверие (7.60 кв.м), просторна дневна, с трапезария и кухня (46.05 кв.м), спалня (13.38 кв.м) и баня с тоалетна (4.77 кв.м);
Втори етаж, състоящ се от: стълбище с преддверие (7.60 кв.м), емпоре (11.70 кв.м), две спални (10 кв.м и 13.37 кв.м), кабинет (8.80 кв.м) и баня с тоалетна (4.77 кв.м);
Къщите са в индивидуални парцели и са проектирани като пасивни , т.е. експлоатационните разходи, които се очаква да генерират са изключително малки. Целият парцел, на който е разположена предложената къщата е с площ от 817 кв.м.
Всяка къща има прекрасна панорамна гледка, собствен двор и джакузи, с целогодишно подземно отопление.
Къщите са на начален етап на строителство, като се очаква да бъдат въведени в експлоатация, с АКТ 16 през 2027 година.
Имотите се продават напълно завършени, до ключ, ще бъдат изцяло обзаведени и оборудвани, с всичко необходимо за живеене. Конструкцията на къщите е Honka Финландия, с допълнителна изолация отвътре. Коефициентът на енергийната ефективност е нула, т.е. няма никакви топлозагуби. Отоплението ще бъде чрез термопомпи, като всяка къща ще си има собствен соларен парк, с мощност от 12 kWt. За водоснабдяването на всяка къща, ще има отделен сондажен кладенец и пречиствателно съоръжение.
Село Дръмша е разположено в землището на община Костинброд, област София и се намира на 20 минути от околовръстния път на столицата, като транспортът до него е уреден и чрез обществени маршрутки. Къщите са позиционирани в краен терен, до гора, без възможност да се застроява над тях. В селото живеят все повече млади семейства, които работят в София, тъй като мястото предлага спокоен начин на живот и същевременно удобна инфраструктура до столицата. Мястото е предпочитано за живеене, заради уникалната си природа и чистия въздух, на които се радват обитателите му.
ERA е независим кредитен посредник към БНБ, с номер BCI000024 и предоставя безплатна консултация и съдействие при финансиране на избрания от Вас имот.
Оферта 3200106
Виж всички обяви в eravalena.bazar.bg или тук
