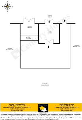
Разположена в самия център на Велико Търново, тази триетажна къща предлага 142 кв.м. жилищна площ върху парцел от 249 кв.м., с гараж и лятна кухня. Имотът е в добро конструктивно състояние, но се нуждае от ремонт отлична възможност да създадете своя дом мечта в един от най-желаните исторически градове в България.
Основният етаж включва дълъг коридор, кухня с излаз на тераса, просторен хол с тоалетна и спалня с тераса с изглед към тихия заден двор. От коридора вътрешно стълбище води както към долното, така и към горното ниво.
На долния етаж са разположени две спални и баня с тоалетна, а на таванското ниво има още една спалня и две допълнителни тавански помещения, които могат да бъдат пригодени според вашите нужди.
Имотът разполага с одобрено строително разрешение за надстрояване на още етажи, което му дава отличен инвестиционен потенциал.
Със своето централно местоположение, гараж, собствен двор и гъвкаво вътрешно разпределение, този дом е рядка находка подходящ както за инвестиция, така и за удобно семейно жилище във Велико Търново.
За да разгледате виртуален тур, моля копирайте и поставете линка във Вашия браузер
ВИРТУАЛЕН ТУР:https://app.cloudpano.com/tours/X6nZ5Vevr
РЕФ. :105596







