Титан Пропъртис има удоволствието да Ви представи къща в село Маноле в близост до град Пловдив.
Местността е живописна и спокойна за живеене.
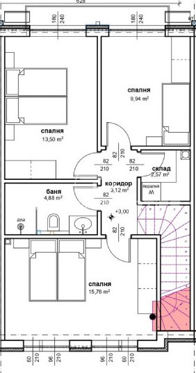
Къщата е на два етажа и разполага с площ от 126 кв.м., разгърната по следния практичен начин: Входно антре, хол с кухненска част, три спални, две бани с тоалетни, перално помещение и подсълбищтно пронстранство подходящо за склад.
Дворът в имота е с площ от 40 кв.м.
Към имотът има и две обособени паркоместа. АКТ 16 се очаква да бъде издаден през месец май, 2026 г.
За оглед на това и други атрактивни предложения, не се колебайте да ни потърсите на посочения телефон или да ни изпратите данните си чрез формата за запитване на сайта.
Реф. номер: 76823







