МОРСКА ПАНОРАМА! ПРЕД АКТ15! ПОДХОДЯЩА ЗА КРЕДИТ!
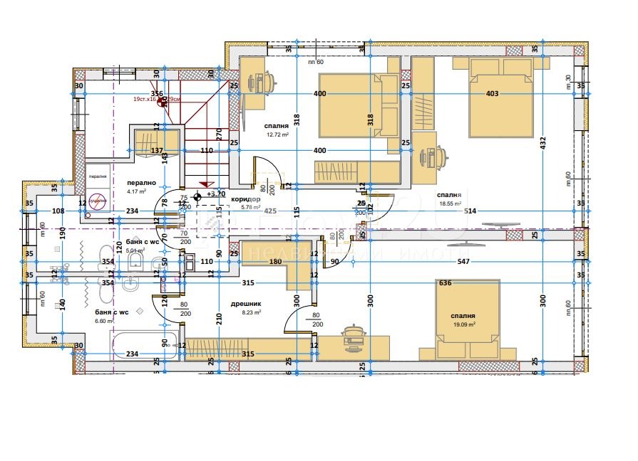
Представяме ви новострояща се двуетажна къща със следното разпределение:
Етаж 1 - просторен дневен тракт с кухненски кът с излаз на тераса, баня и тоалетна ведно;
Етаж 2 - родителска спалня със собствен дрешник и баня и тоалетна, втора спалня, трета спалня, баня и тоалетна ведно, перално помещение;
За ваше улеснение прилагаме схеми на разпределние.
Къщата е част от комплекс от нови модерни къщи с видеонаблюдение и охраняема територия. Предвидените материали са съобразени с последните технологии и иновации в строителният бранш. В района има целогодишно живеещи семейства. Изключително чистата природна среда и въздух ще осигури на живеещите в тази къща спокойствие и уют.
Към имота има двор от 350кв.м.
За допълнителна информация и оглед - обадете се сега и цитирайте код: 110630







