За повече информация обадете ни се на тел: 0882 817 456 или 052 813 703 и цитирайте референтния номер на имота: Vna 88116.
Отговорен брокер: Николай Витанов
Предлагаме за продажба двуетажна къща в жк. Виница, близо до възловата ул. Цар Борис III, на 4 км от плажа. Изложението на къщата е южно, с нескриваема морска панорама.
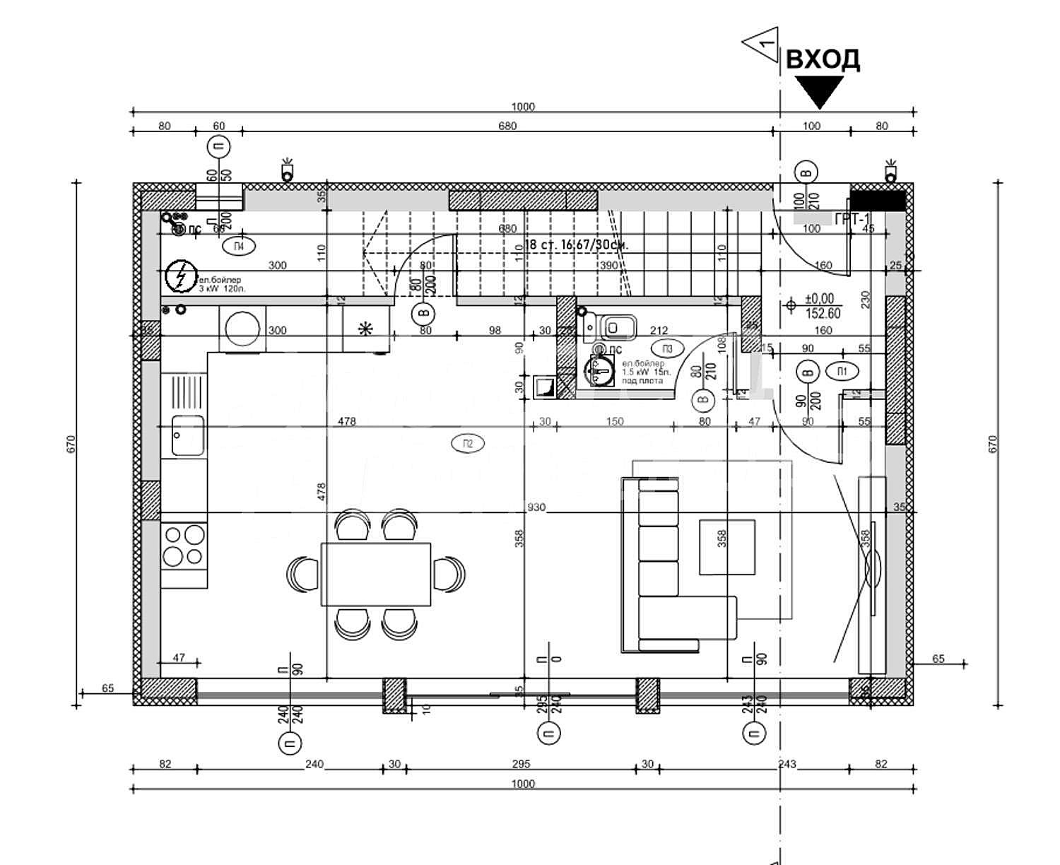
Имотът е с обща разгъната площ от 174 кв. м., намиращ се в парцел от 410 кв.м. Къщата се състои от:
Първи етаж - входно антре, голям дневен тракт с излаз към веранда, баня и тоалетна;
Втори етаж - коридор, три хубави спални с излаз на обща тераса и баня с тоалетна.
Къщата ще бъде завършена през 2026 г. и издадена по БДС. За построяването й се използват най-новите технологии за енергийна ефективност. Ще бъде завършена с дограма Kömmerling с троен стъклопакет, изолация 10 см. стиропор с минерална мазилка, вътрешни варови мазилки, които регулират влажността и са антибактериални, гарантиращи здравословна и приятна атмосфера във всяко помещение.
При желание на новия собственик, в имота може да бъде изградена собствена фотоволтаична система 6 kW + батерия 10 kW на цена от 15 000 евро.
Къщата разполага с пречиствателна станция, както и две паркоместа в двора, с възможност за зареждане на електромобили.
Виница е спокоен квартал с отлична инфраструктура, снабден с пощенски клон, училище, детска градина, православен храм Свети Атанасий , 2 медицински центъра, ветеринарна клиника, аптеки, бензиностанции, кметство, 3 клона на банки, конна база, множество магазини за хранителни стоки и пазар за пресни зеленчуци и плодове. Автобусната линия, която свързва квартала с централната част на Варна е 31. Обслужва се и от целогодишна линия 31А, с маршрут Виница к.к. Св. Св. Константин и Елена ЖП Гара.
Оглед на имота
Можем да организираме оглед на имота спрямо нашия график и възможностите за достъп до него. Заявете вашето желание за оглед, като се свържете с отговорния за офертата брокер по имейл или телефон.
Резервация на имота
Имотът може да бъде резервиран и свален от продажба със заплащане на депозит, след което се прекратява провеждането на огледи с други купувачи и започва подготовка на документите за сключване на предварителен и окончателен договор. Свържете се с отговорния брокер за подробна информация относно процедурата на покупка и начините за плащане.
Жилищен кредит
Ние си партнираме с водещите български банки и можем да ви свържем с техните консултанти за информация и кандидатстване ...







