Представяме самостоятелна двуетажна къща 300 кв.м, с площ на парцела 1048 кв.м, за продажба в Бистрица. Къщата е със степен на завършеност на груб строеж, налични Акт 14 и чл. 181.
Имотът се намира на изключително слънчева и просторна локация, с прекрасна панорамна гледка към планината.
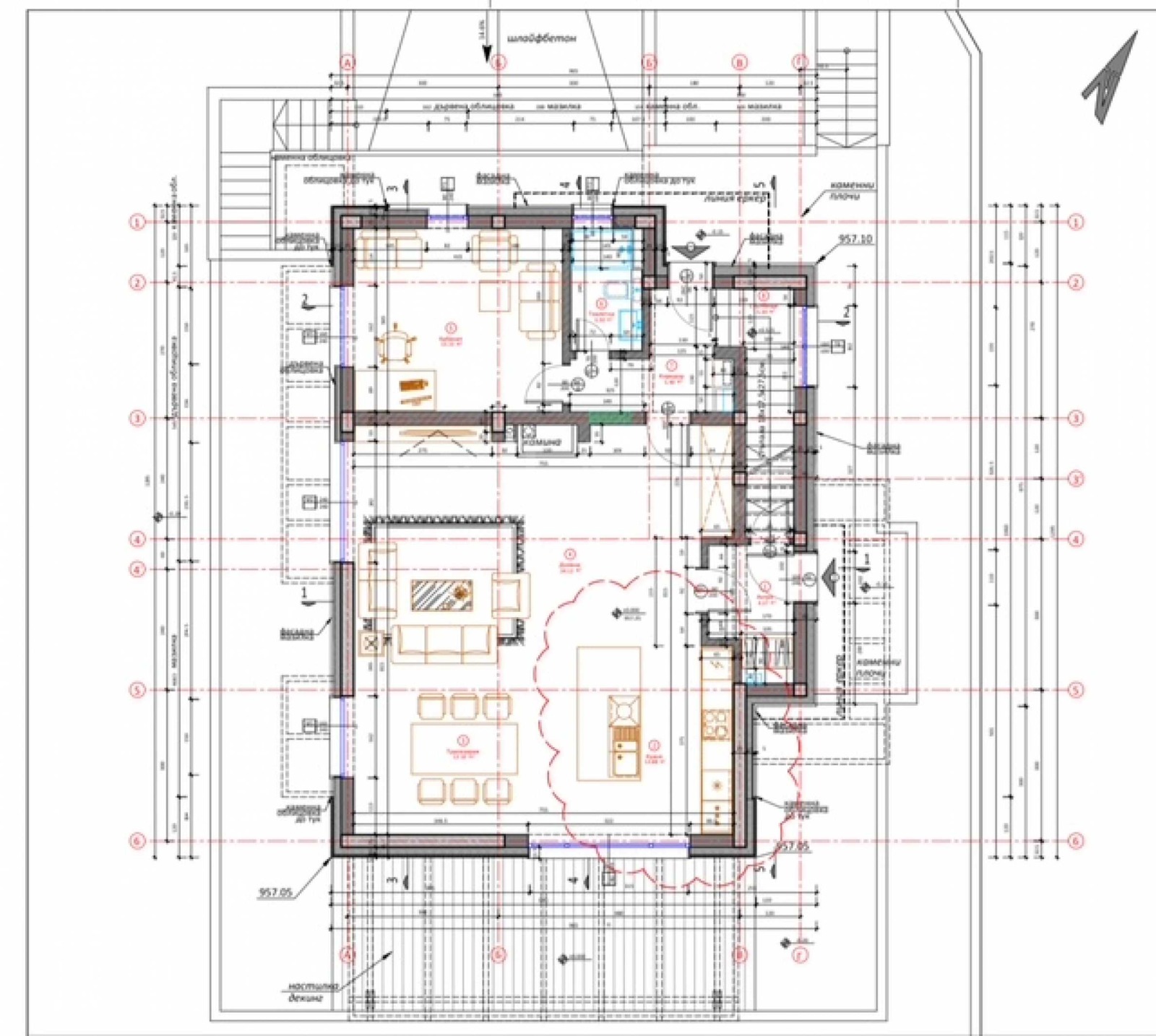
Разпределение етаж 1:
- входно антре;
- хол с трапезария и кухненска част с директен излаз към градината;
- самостоятелна спалня;
- санитарен възел за етажа.
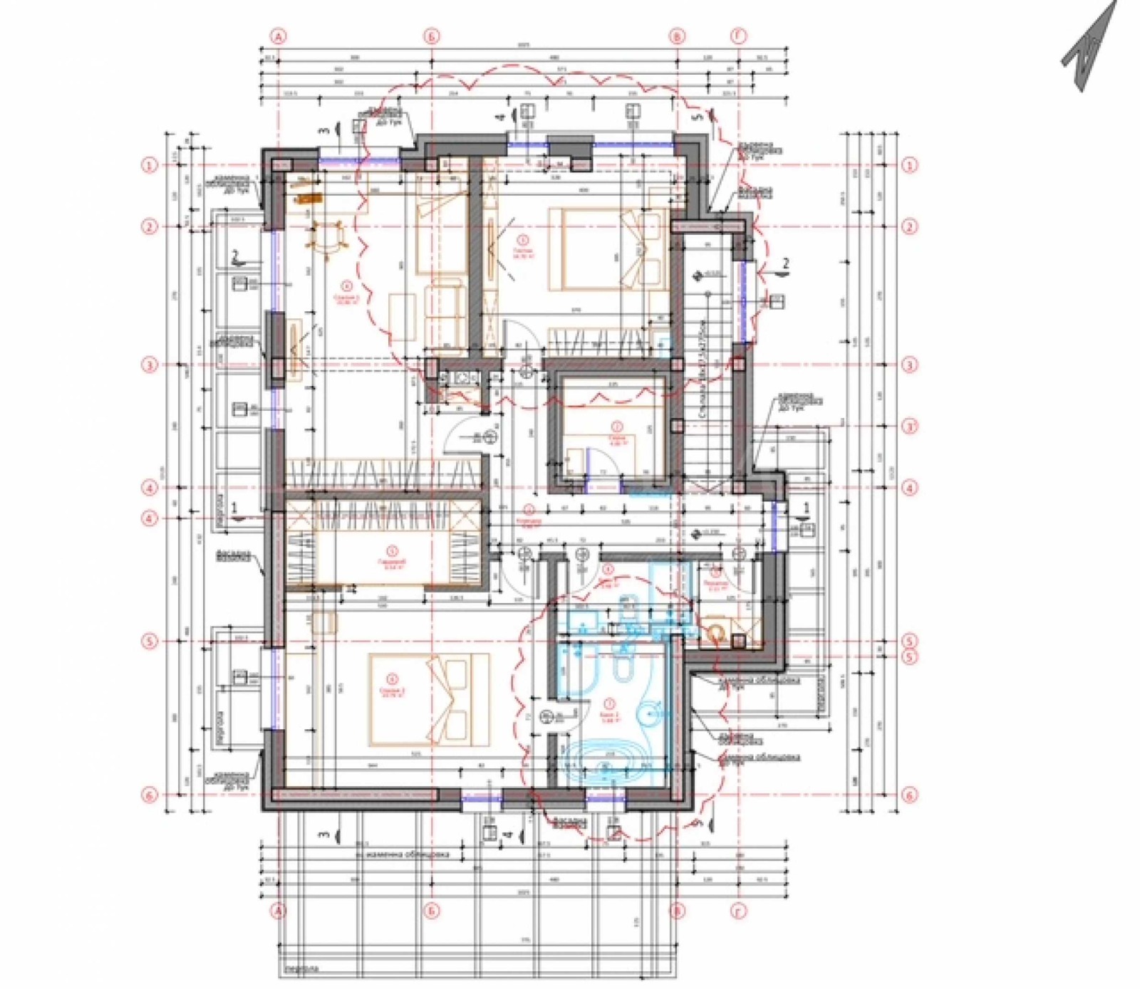
Разпределение етаж 2:
- антре;
- две самостоятелни спални;
- санитарен възел;
- спалня със собствена гардеробна и санитарен възел.
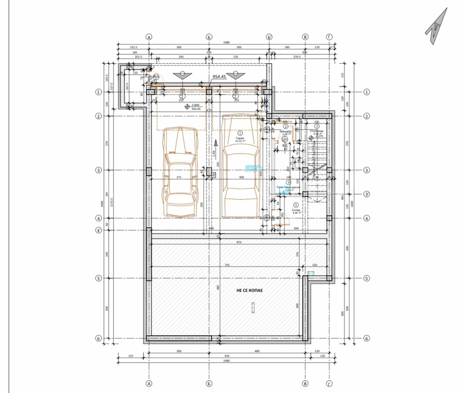
Разпределение сутерен:
- паркоместа за до 4 автомобила, избено помещение.
Характеристики и степен на завършеност:
- Ел и ВИК инсталации изградени;
- Изцяло окабеляване за СОТ и видеонаблюдение;
- Вътрешна мазилка;
- Външна Топлоизолация;
- Пречиствателна станция модел One2Clean 5, производство GRAF Германия.
- Резервоар Carat S 3750 л + Система за дъждовна вода Garden Comfort, производство GRAF Германия. Свързан е с кладенец с постоянен воден капацитет;
- Подравнен и изчистен двор;
- Завършена и отводнена рампа (без настилка) към гараж;
- Завършена рампа (без настилка) към централен ход;
- Подготвени за настилка пътеки около къщата.
Очакваме Вашето запитване
Ако желаете да организирате оглед на имот, който Ви интересува, или да посетите някой от нашите офиси, моля свържете се с нас. За да уговорите ден и час за среща или оглед, можете да се обадите на посочения в обявата телефон или да изпратите запитване чрез електронната поща. Нашият консултант ще Ви съдейства с всички необходими подробности и ще уговори удобно за Вас време.
Търсите подходящия за Вас имот?
Не се колебайте да се свържете с нас и да ни разкажете за Вашите нужди и предпочитания. Нашият екип ще проведе задълбочено проучване на пазара, за да Ви предложи имоти, които точно отговарят на Вашите критерии. Разполагаме с изключително ...
За повече информация свържете се с нас и цитирайте референтния номер на имота. Моля, кажете, че сте видeли обявата в този сайт.
Референтен номер: AP 134189
Тел: 0988 154 590, 02 451 47 82
Отговорен брокер:Преслава Мизинова
Виж всички обяви в luximmo.bazar.bg или тук



