(Оферта 8520)
БЕЗ КОМИСИОННА!!!
АКРОНА Имоти има удоволствието да ви предложи еднофамилни къщи от модерен тип в с. Марково!
ЗАЩО ДА ИЗБЕРЕТЕ ТОЗИ ИМОТ:
Просторна и комфортно разпределена жилищна площ на два етажа!
Френски прозорци за максимално количество естествена светлина!
Висококачествено строителство!
Гараж и 2 паркоместа в цената!
Самостоятелни дворове с различна големина!
Изградени фотоволтаични панели на покрива, покриващи до 75% от консумацията на електричество.
ПАРАМЕТРИ НА ИМОТА:
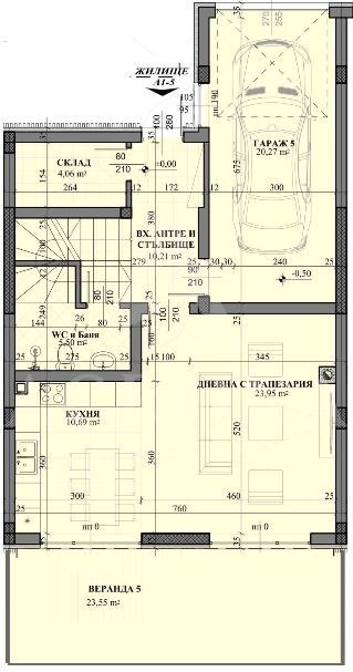
РЗП - 180 кв.м.
Етаж 1 - Голяма всекидневна с площ 36 кв.м. и излаз на веранда, санитарен възел, входно антре, стълбище и гараж с топла връзка!
Етаж 2 - Три самостоятелни спални, две бани с тоалетни, дрешник!
Изложение - Юг/Север
За повече информация или оглед се обадете на посочените телефони!
Работейки с нас, Вие получавате банково кредитиране при преференциални условия и цялостна юридическа проверка на имотите, които предлагаме.
Разгледайте пълния ни списък от оферти на www.acronaimoti.bg







