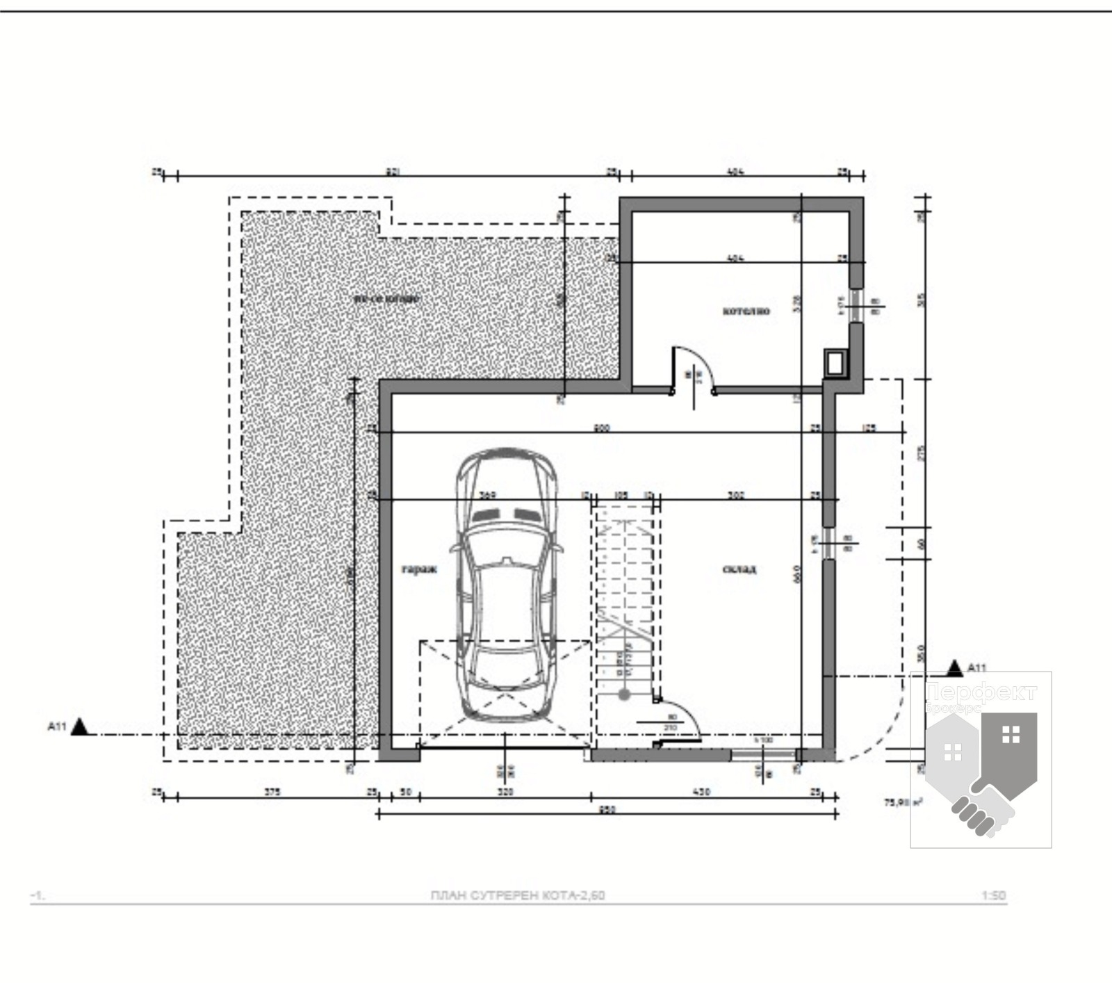
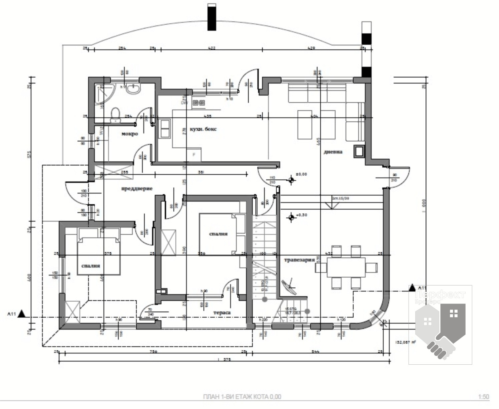
Имота е на три етажа, два от който жилищни с обща площ от 360 м2. На първи са разположени два гаража, котелно помещение и вътрешно стълбище, водещо към втори етаж на който са разположени голяма и просторна дневна с кухненска част и хол, две спални, санитарен възел и веранда.
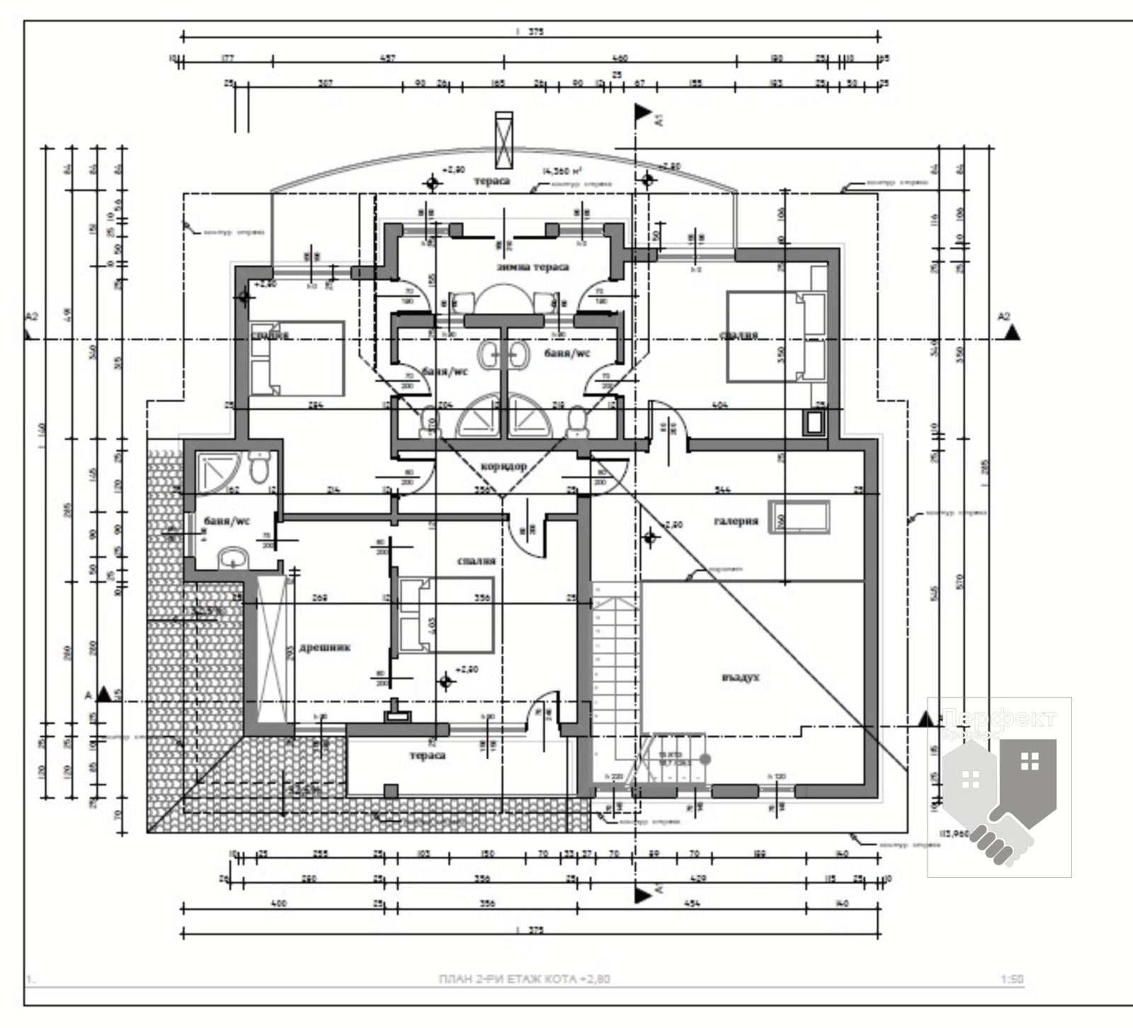
На третия етаж има три спални с тераса, от която се открива прекрасна гледка към Витите скали и обща тераса за останалите две спални/, санитарни възли .
Между двата жилищни етажа е направен вестибюл.
Къщата е със самостоятелен вход както и топла връзка от гаражите.
Изпълнена е с висококачествени строителни материали, дограмата е шест камерна PVC стъклопакет четири сезона. Направен е дренаж заустен в канализацията, покрива е завършен с керамични керемиди, водосточни тръби и улуци. Има открити партиди за електричество и вода. Площ на парцела 460 м2.
Цена 250 000 Евро. Реф. 1136.
Виж всички обяви в perfectbrokers.bazar.bg или тук
        
       
         
         
         
         
         
         
         
         
         
         
         
         
         
         
         
         
         
             
             
             
             
             
             
             
             
             
             
             
             
             
             
             
             
            


