HOLDING GROUP real estate представя на Вашето внимание фамилна къща в кв. Виница. В парцел с площ от 410 кв.м. се изгражда този чудесен двуетажен дом с разгъната застроена площ от 174 кв.м., от които 20 кв.м. е веранда. Разпределението на къщата е следното:
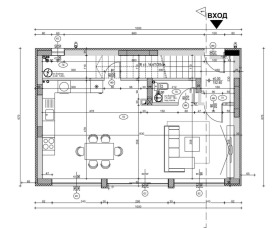
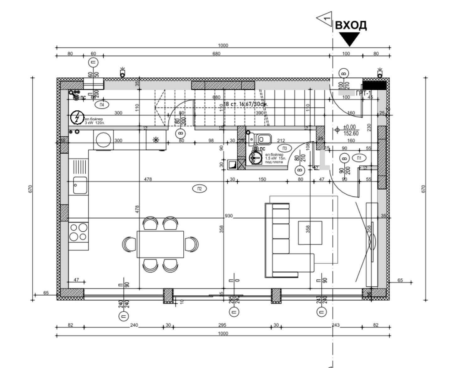
етаж едно се състои от антре, просторен дневен тракт, обособен на кътове с излаз на веранда, баня с тоалетна и стълби към етаж две.
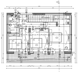
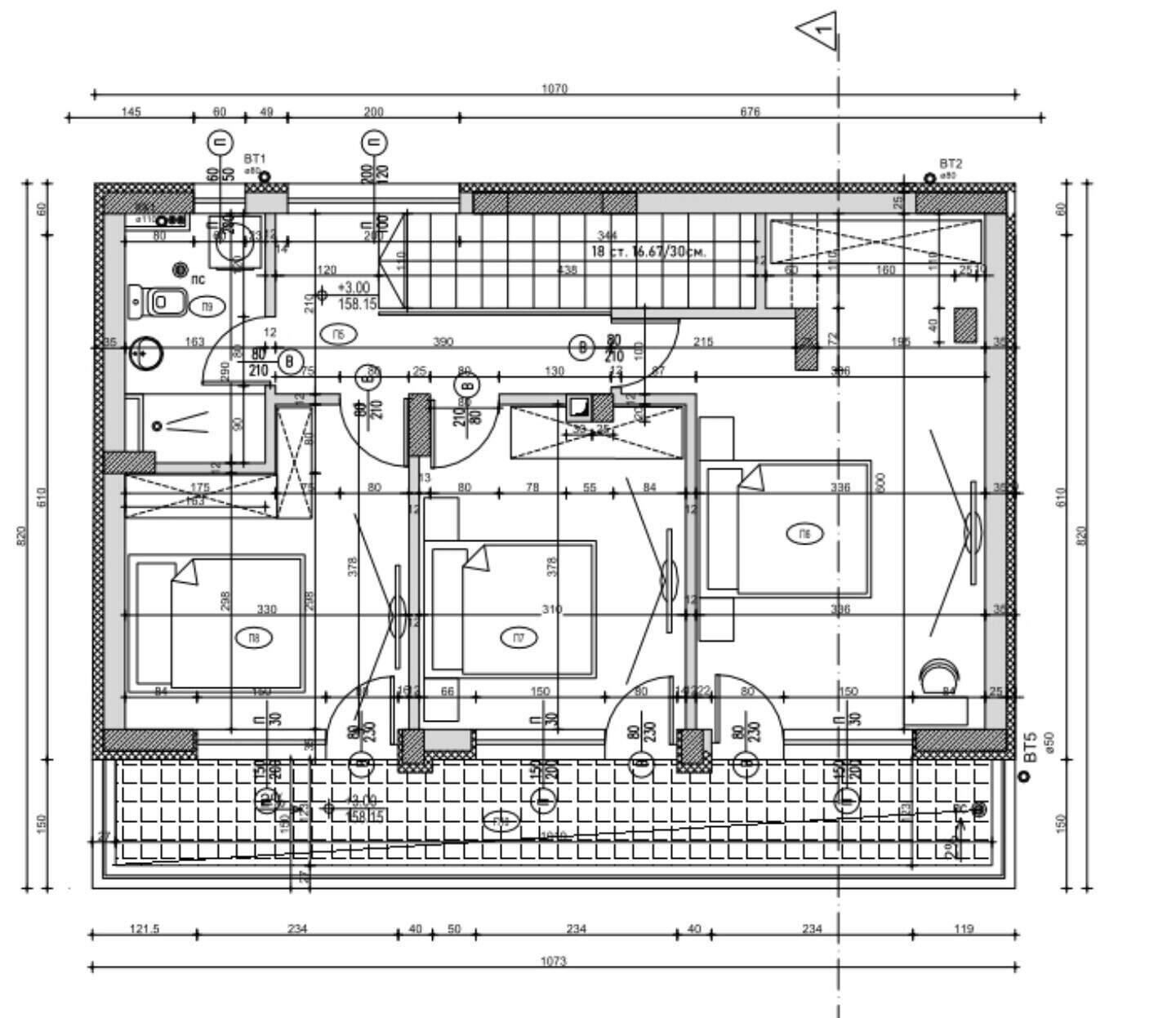
етаж две се състои от коридор, три хубави спални с излаз на обща тераса и баня с тоалетна.
Изложението на имота е южно и от него се открива красива морска панорама. Къщата се издава съгласно БДС:
Дограма: Kömmerling с троен стъклопакет
Изолация: 10 см. стиропор с минерална мазилка
Фотоволтаична система: 6 kW + батерия 10 kW и пречиствателна станция.
Вътрешни мазилки - ВАРОВИ /регулират влажността и са анти бактериални/, гарантират здравословна и приятна атмосфера във всяко помещение.
Две парко места в двора, възможност за зареждане на електромобил.
Налични партиди за ток и вода.
За построяването на къщата са използвани най-новите технологии за енергийна ефективност.
Достъпът до имота е от главен път, изцяло асфалтов. За подробности и огледи, моля да се обадите на посоченият телефонен номер и да цитирате кода на офертата.
Код на офертата 7981







