Имотите се намират на предпочитана и удобна локация в близост до голф игрище Равно Поле . Проектът умело съчетава удобствата на градската къща с хармонията на живота сред природа, чист въздух и спокойствие.
Основни характеристики:
Простор и височина: тавани с височина 3,15 м. на първо ниво и 3,50 м. на второ ниво
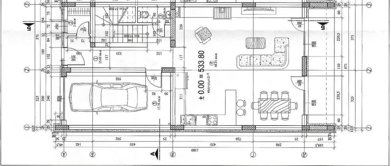
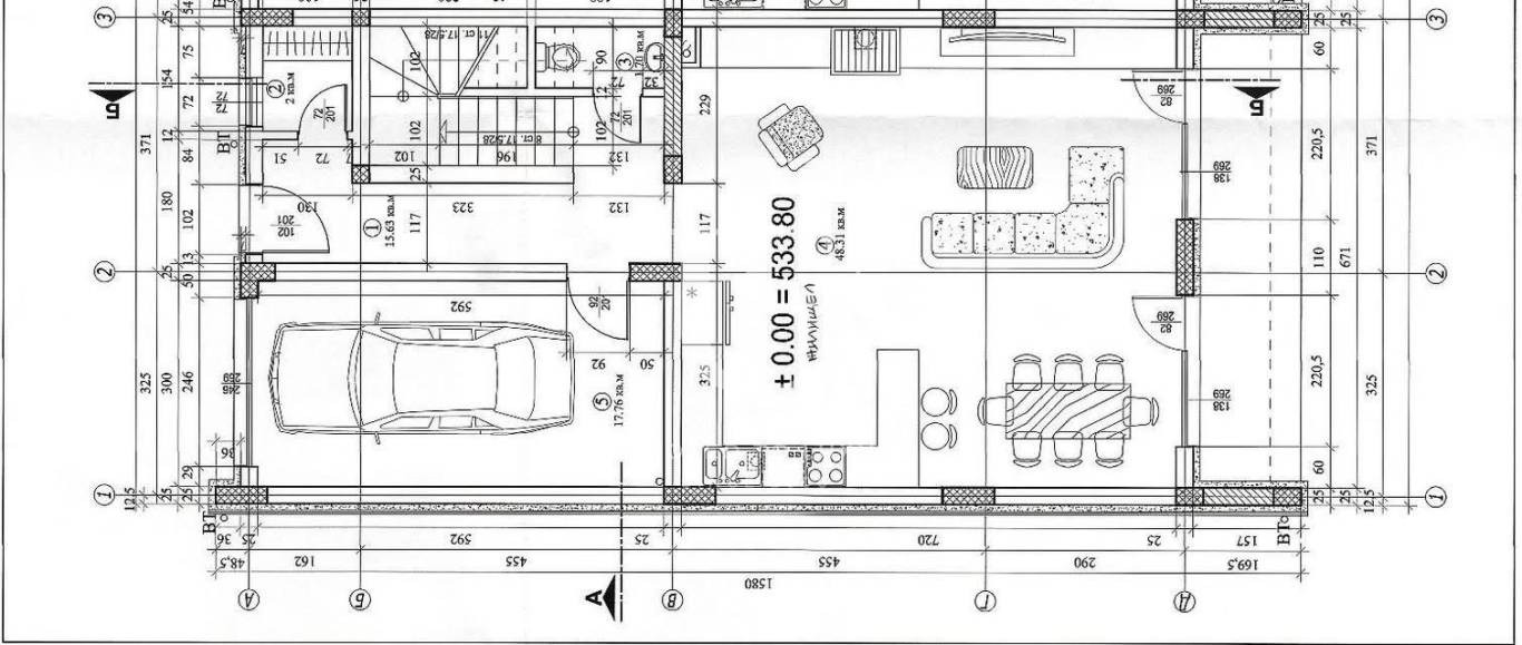
Лично дворно пространство: 77 кв.м равен терен с положен хумусен слой, озеленена тревна площ, изградена автоматична поливна система (капково напояване и пръскачки), електрическо захранване
Конструкция и довършителни работи:
Подове: замазка
Стени: минерална вата и двоен гипсокартон
ВиК: на тапи
Електро: конзоли и разклонителни кутии
ОВК: тръби и клапани за подово отопление, изводи за климатична сплит система
Енергийна ефективност: газификация прекарана газ до всяка къща
Вход и гараж: усилена входна врата H?rmann, автоматична гаражна врата H?rmann
Дограма: алуминиева Schuco с Хебе-Шибе механизъм (повдигане и плъзгане) и троен стъклопакет
Фасада и покрив: вентилируема фасада Alumil и керамични плочи Laminam
Първи етаж:
Хол с кухненси бокс и трапезария с излаз към двор 77 кв.м, тоалетна за гости, гараж.
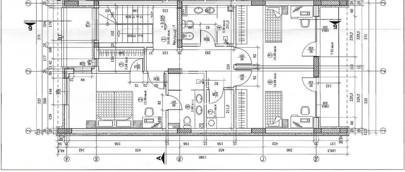
Втори етаж:
3 спални, една от които със собствена баня, втора баня, мокро помещение, тераса. Ref. ID:27267
Виж всички обяви в uniqueestates.bazar.bg или тук
        
       
         
         
         
         
         
         
         
         
         
         
         
         
         
         
         
         
         
             
             
             
             
             
             
             
             
             
             
             
             
             
             
             
             
            






