ЕКСКЛУЗИВНО!!! МОРСКА ПАНОРАМА!!! САМОСТОЯТЕЛНА КЪЩА С ДВА ГАРАЖА!!!
РАЗСРОЧЕНО ПЛАЩАНЕ!!! АКТ 14 !!!
реф. но: 4279
Имотът се състои от:
- Първо ниво - 110м2: Вх. антре, Просторна Дневна, Спалня, Баня с тоалет, Веранда, Котелно (не влиза в квадратурата);
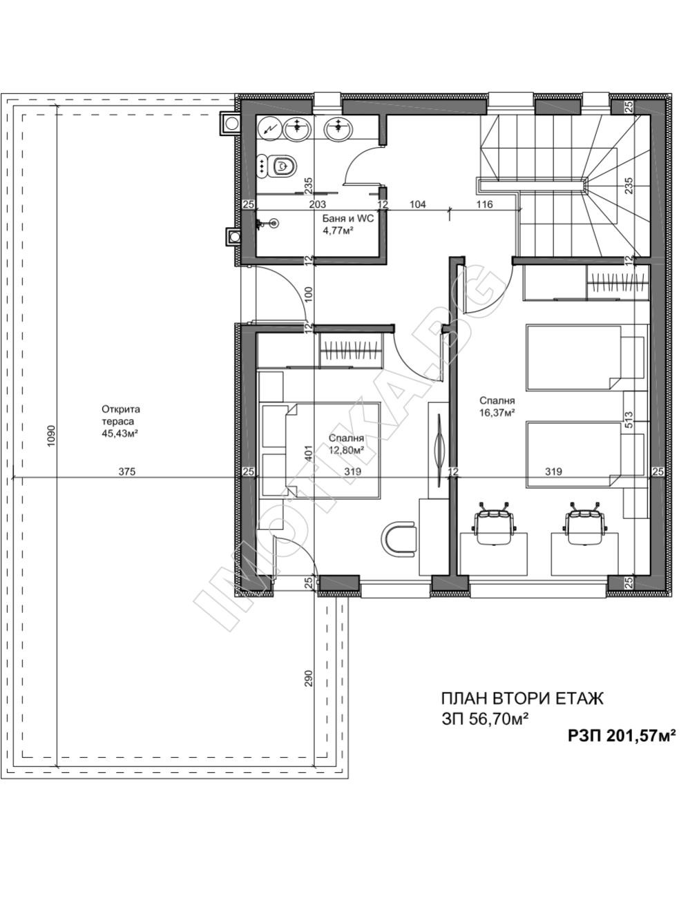
- Второ ниво - 77м2: Две Спални, Баня с тоалет, Тераса, Дрешник.
Двор 900м2 с Два гаража - 68м2, собствен водоизточник, Джакузи с Подгрев, Беседка с Барбекю, Допълнително Складово Помещение, Осветление.
Състояние: Издава се завършен До Ключ с материали по избор на клиента!
Строителство: Висококачествено Ново Строителство.
Схема на плащане: 60% на предварителен договор, 30% Акт 15, 10% Акт 16.
Отлична Локация: На 600 м от главния път, на 15 мин. от центъра на гр. Варна, на 5 мин. от к.к Св. Св. Константин и Елена.
Изгражда се канализация в района и обновяват пътя! Целогодишно обитаване.







