454698 Предлагам за продажба самостоятелна, модерна еднофамилна къща, част от проект от 6 къщи. Разположението предлага красива панорамна гледка от всяка една от къщите.
Проектът е разположен в полите на Витоша, само на няколко минути с автомобил от центъра на София, с красива панорамна гледка към града и планината.
Строителството е на етап Разрешение за строеж.
ЗА ПРОЕКТА:
* Всяка къща е предвидена с индивидуален двор.
* Изградени В и К система и пречиствателна станция.
* Ограда по границите на парцела.
* Къщите се предават на шпакловка и замазка и външна блиндирана врата.
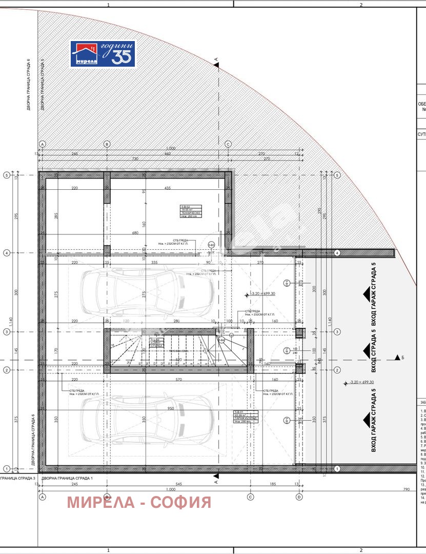
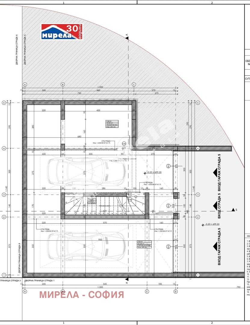
РАЗПРЕДЕЛЕНИЕ НА КЪЩА 5.
* Ниво сутерен със застроена площ 106.03 кв. м, антре, гараж за два автомобила и склад, техническо помещение и стълбище.
* Ниво 1-ви етаж кота 0 със застроена площ 49.80 кв. м, включващо дневна, кухня с трапезария, тоалетна и стълбище.
* Ниво 2-ри етаж: със застроена площ 60.10 кв. м - стълбище, коридор, мокро помещение, две спални, две бани с тоалетна.
* Ниво 3-ти етаж със застоена площ 54.89 кв. м - стълбище, коридов, две спални, две бани с тоалента.
АКЦЕНТИ НА ПРОЕКТА:
* Район с ниско застрояване и множество нови, модерни комплекси от къщи;
* Страхотни гледки към града и Витоша планина от високите етажи;
* Озеленени собствени дворове към всяка къща.
За повече информация и огледи, не се колебайте да се свържете с водещия консултант-продажби.
Има подземен гараж; Продава се без обзавеждане; ЕТАП НА СТРОИТЕЛСТВО: разрешение за строеж; ОТОПЛЕНИЕ: Газ - централно; Предава се на шпакловка и замазка; Луксозен имот; Районът е без централна канализация; ЗАСТРОЕНА ПЛОЩ 49.80 кв.м; ПУСКОВ СРОК: 12.2026; СПАЛНИ: 4; БАНИ: 4; ДОГРАМА: PVC
_________________________________________________________________________________________________
Към потенциалните продавачи!
Ако продавате подобен имот или обмисляте дали да го направите в близко бъдеще, моля свържете се с мен. Имам клиенти, които търсят в района. Мога да дам ориентировъчна цена по телефон или имейл и по-точна цена при оглед на място.
ОГЛЕДЪТ И КОНСУЛТАЦИЯТА СА БЕЗПЛАТНИ.
МОЖЕТЕ СЪЩО ТАКА, ДА ПОДАДЕТЕ И БЕЗПЛАТНА ЧАСТНА ОБЯВА ЗА ПРОДАЖБА НА ВАШИЯ ИМОТ В MIRELA.BG, БЕЗ БРОКЕР И КОМИСИОНА.



