Translations in other languages:
All real estate ads published on imot.bg have been translated into English and published on the partner site
Получихте нова обява по филтър





Промяна на цена на наблюдавана обява


стара цена
нова цена
imot.bg – обяви за продажби и наеми на имоти
Сайт за имоти №1
Translations in other languages:
All real estate ads published on imot.bg have been translated into English and published on the partner site
ДОБАВИ ОБЯВА Редакция на обява
Начало Добави обява Търсене Агенции Новини Кредити Вход / Регистрация
Продава КЪЩА
област София, с. Пролеша
с.Хераково, кв.Бобен
349 000 €
682 584.67 лв.

(1 485 €, 2 904.41 лв./m2)
Не се начислява ДДС
История на цената
Коригирана в 15:30 на 10 март, 2026 год.
Обявата е посетена 399 пъти.
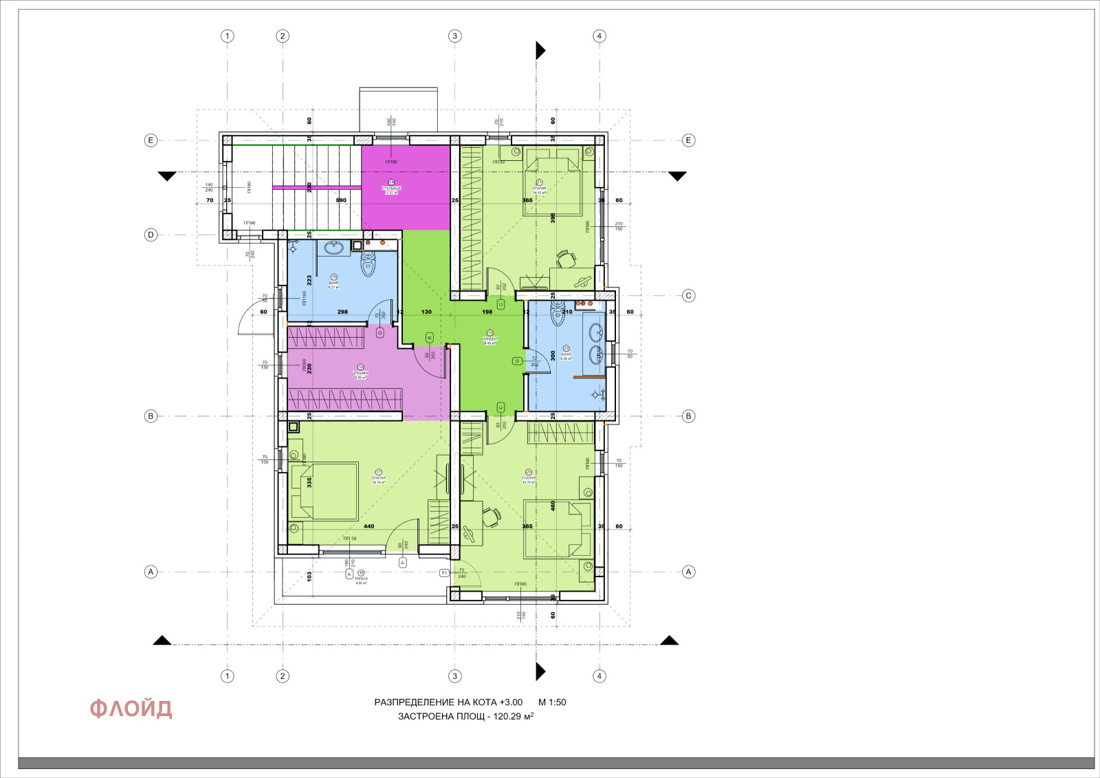
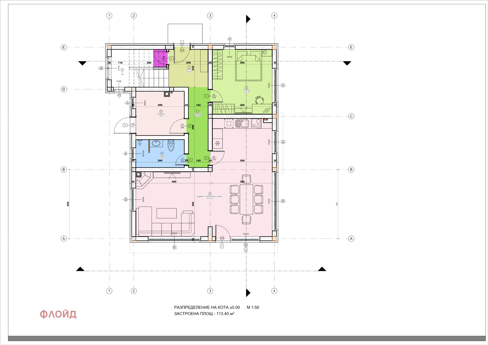
Площ:
235 m2
Двор:
752 m2
Етаж:
2
Строителство:
Тухла, Въведен в експлоатация 2025 г.

Описание на имота:


Въведена в експлоатация през юни 2025г. Възможност да се ползва високо финансиране от банка. Съседните къщи са продадени на млади семейства с деца, което създава отлична среда в квартала. Изключително качество на изпълнение от дългогодишно утвърдена строителна фирма. Разполага с четири самостоятелни спални, просторен хол със светла кухня, три бани с тоалетни, техническо помещение, тераса и около 60 кв.м. подпокривно пространство с капандури, което е като бонус, извън застроената площ на двата основни етажа от 235 кв.м. Намира се на много слънчево място в кв. Бобен, с. Хераково, общ. Божурище, на няколко минути от София по главния път за Калотина. Изграден е нов централен водопровод с голям дебит, както и пречиствателна инсталация за отпадните води към всяка къща, която може да служи и за напояване. Отоплението е с изводи за радиатори , като най- подходящия вариант е с термопомпа и допълнително инсталиране на соларни панели на покрива. Предвидени са изводи и за климатици. Къщите са със сертификат за енергийна ефективност клас- А. По проект са с паркоместа в двора, които впоследствие могат да бъдат покрити. Най- изгодната оферта за чисто нова къща в такава близост до столицата. По- ниска цена на квадратен метър от панелен апартамент в града, дори без да отчитаме земята и подпокривното помещение. Предлага се и възможност за довършителни работи по проект на новите собственици. За повече информация и огледи по всяко време: Драгостин Паунов- 0888 527 967. С ключ. Работим с колеги всички наши оферти.
Особености
Тухла
С паркинг
Интернет връзка
Видео наблюдение
Контрол на достъпа
За контакт:
0888527967
Брокер:
Драгостин Паунов
02/8581941;0888527967
Още оферти от брокера: Продава | Дава под наем | Купува | Наема
Агенция:
ФЛОЙД
0888527967,0888208442;028581941
ФЛОЙД logo
Медал за прослужено време
В imot.bg от 2005 г.
floydbg.imot.bg
Адрес:
област София, гр. София, ж.к.Гоце Делчев,ул.Кестенова гора, бл.26
http://floydbg.imot.bg
ИЗПРАТИ ЗАПИТВАНЕ
ИЗПРАТИ ЗАПИТВАНЕТО

Продава КЪЩА
област София, с. Пролеша
с.Хераково, кв.Бобен
Обява: 1j175620538809309

349 000 €
682 584.67 лв.
История на цената
(1 485 €, 2 904.41 лв./m2)

Не се начислява ДДС
ЗАПАЗИ ОБЯВАТА

Местоположение: област София, с. Пролеша, с.Хераково, кв.Бобен

Виж още имоти от с. Пролеша или още Къщи в с. Пролеша, София
Още обяви в imot.bg
Обяви за имоти Продажби област София с. Пролеша Къщи
Въпроси и предложения към imot.bg
КОНТАКТИ | SMS КОДОВЕ | ПОМОЩ | ОБЩИ УСЛОВИЯ | РЕКЛАМА | ЗАЩИТА НА ЛИЧНИТЕ ДАННИ | КАРТА НА САЙТА |
Резон Медия | Автомобили | Работа | Новини | Обяви 2002-2026 ® Copyright imot.bg
© imot.bg ползва и препоръчва хостинг услугите на Bulinfo.net
Следвайте ни в: