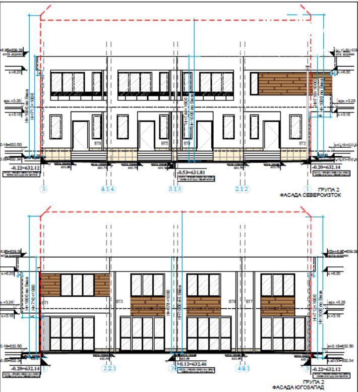
ХАРАКТЕРИСТИКИ НА ИМОТА
Разпределение:
РЗП: 106,80 кв.м.
Двор: 71.6 кв.м.
Разпределение:
Първо ниво: хол с трапезария и кухня, баня с тоалетна.
Второ ниво: две спални, гардеробна, баня с тоалетна.
ПРЕДИМСТВА НА ИМОТА
Тиха и спокойна локация;
Изгодна цена за района;
Ново строителство от доказан инвеститор;
Две спални, две бани, двор, паркомясто на разумна цена.
Паркомясто на цена от 10 000 евро
ТЕХНИЧЕСКИ ХАРАКТЕРИСТИКИ НА ИМОТА
Състояние на предаване - Ш/З;
Дограма- трислоен стъклопакет;
Отопление на ток;
ЛОКАЦИЯ НА ИМОТА
Предпочитан район за живеене, в близост до центъра и детска градина. Паркове, басеини, градски транспорт, Фантастико, HAPPY, множество магазини и здравни кабинети съчетано с чист въздух и спокойна среда за живот.Асфалтов път, директна близост до основна пътна комуникация.
Акт 15 април 2026г.
Акт 16 септември 2026г.
Схема на плащане:30/30/30/10.
Цената е с включено ДДС.
Ref. 7666
Виж всички обяви в bulgariasir.bazar.bg или тук
        
       
         
         
         
         
         
         
         
         
         
             
             
             
             
             
             
             
             
            






