Тихо вътрешноквартално пространство, на втора линия спрямо бул.Сливница, 600м до метростанция СЛИВНИЦА, автобусни спирки, хипермаркет, детски и учебни, аптеки, медицински и спортен център. Район с градска структура и потенциал.
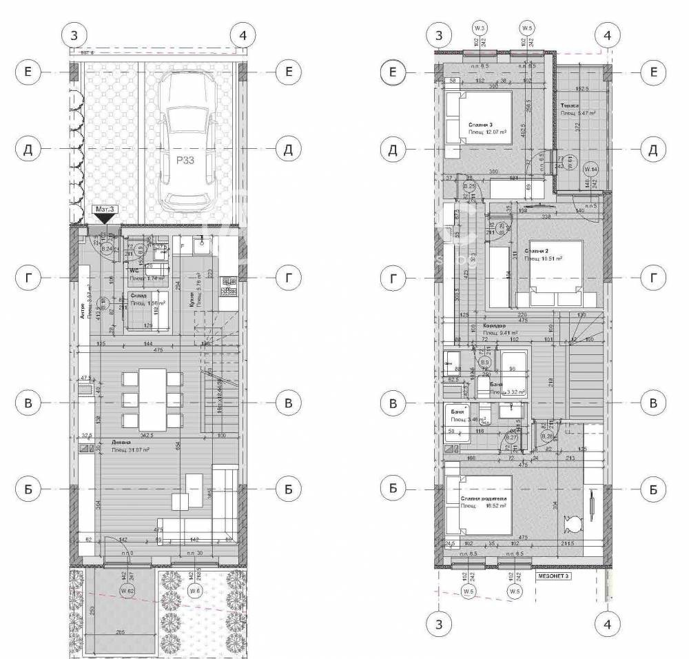
СГРАДА -затворен тип, в ограден двор с контрол на достъпа, отлична визия и качество на материали и системи, собствен двор-градина, подземни паркоместа на цена от 15 000Е, благоустроен и озеленен двор по ландшафтен проект.
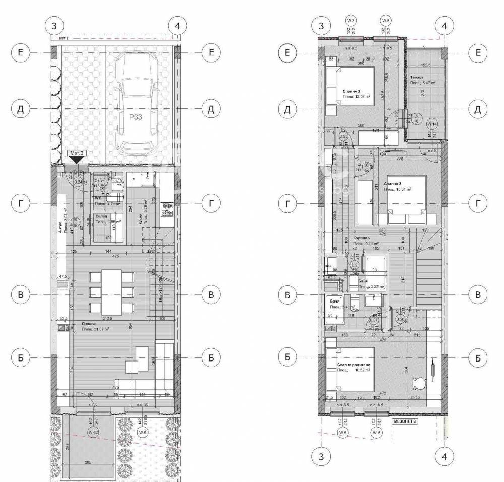
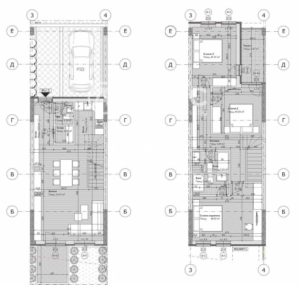
Локация с бърз достъп до центъра, лесно излизане от града, В близост до метростанция, Развита социална инфраструктура.Голяма площ,отлична функционалност на жилището, усещане за 'КЪЩА' в града, двор и паркиране.
Обади се сега и цитирай този код 642120
Виж всички обяви в address.bazar.bg или тук
        
       
         
         
         
         
         
             
             
             
             
            






