Титан Пропъртис има удоволствието да Ви представи двуетажна къща, находяща се в село Марково.
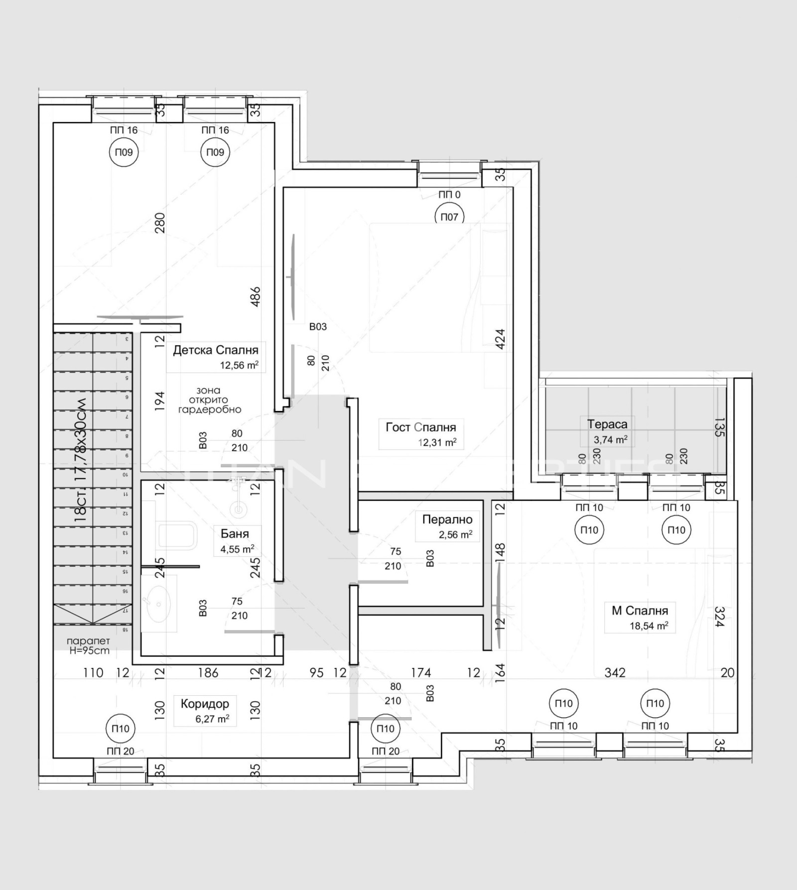
Имотът разполага с площ от 142 кв.м. , като разпределението включва: Входно антре, дневна с кухня и трапезария, баня с тоалетна, гардеробна и веранда; на етаж втори има коридор, три спални, баня с тоалетна, перално помещение и тераса.
Жилището има ток, вода и канализация. Отоплението е електричество.
За оглед на това и други атрактивни предложения, не се колебайте да ни потърсите на посочения телефон или да ни изпратите данните си чрез формата за запитване на сайта. Реф. номер: 75297







