Титан Пропъртис има удоволствието да Ви представи двуетажна къща - близнак, находяща се в село Марково.
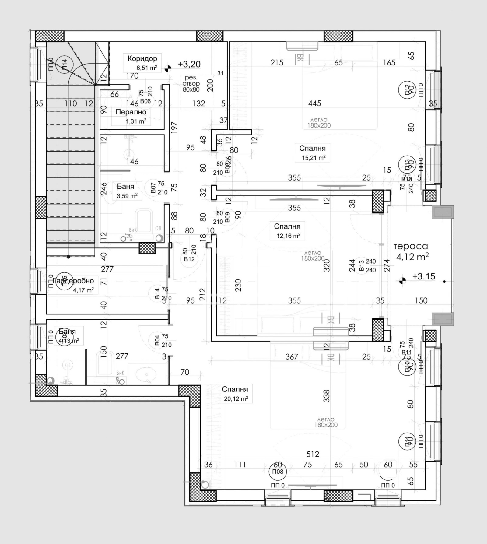
Имотът разполага с площ от 165 кв.м. , като разпределението включва: Входно антре, дневна с кухня и трапезария, баня с тоалетна и веранда; на втори етаж има коридор, три спални, две бани с тоалетна, гардеробно и перално помещение с тераса.
Жилището има ток, вода и канализация. Отоплението е електричество.
Парцела е с площ от 550 кв.м. Жилището се предлага на шпакловка и замазка, като така може да придобие мечтаният от Вас вид! За оглед на това и други атрактивни предложения, не се колебайте да ни потърсите на посочения телефон или да ни изпратите данните си чрез формата за запитване на сайта. Реф. номер: 75294







