ЕКСКЛУЗИВНО! Прекрасна възможност за инвестиция!
ЕСТЕЙТ Груп продава САМОСТОЯТЕЛНА КЪЩА С ДВОР в сърцето на кв. Аспарухово, гр. Варна
Представяме Ви уникална двуетажна къща с голяма обща площ от 392 кв.м, която предлага множество възможности за обитаване или отдаване под наем.
Този имот съчетава комфорт, функционалност и традиционен стил, идеален както за живеене, така и за инвестиция.
Основни характеристики на имота:
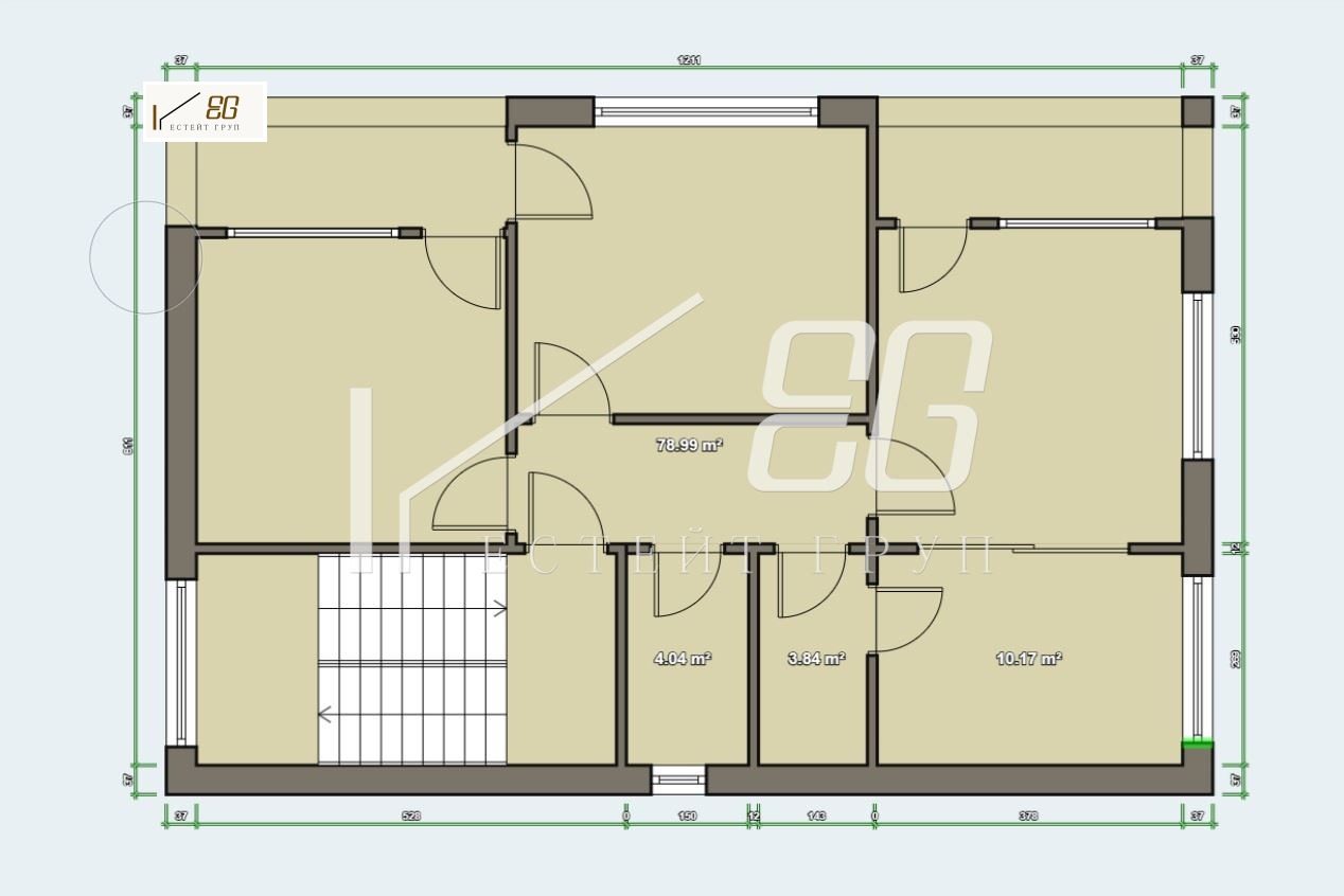
Двуетажна къща с функционален сутерен, който може да бъде използван като две двустайни жилища.
Всеки от двата етажа функционира като четиристаен апартамент, подходящ за голямо семейство и осигуряващ комфорт и простор.
Мансарда след основен ремонт /нов покрив/ с изводи за ВиК, в идеално състояние, готова за разпределение според Вашите нужди- и може да бъде използвана като допълнително жилищно пространство.
Общо 12 стаи, включително 8 спални, 3 бани с тоалетни и 1 отделна тоалетна, която обслужва двора и гаража. /описанието е без включена мансарда/
Трите балкона, предоставят удобство и допълнително пространство за отдих.
Година на строителство: 1968 г.
Имотът може да бъде организиран като едно голямо жилище или разделен на две до шест отделни жилища, което го прави изключително гъвкав и подходящ за различни инвестиционни стратегии.
Двор с площ 450 кв.м, красиво поддържан и оборудван с външна лятна кухня в национален стил.
Просторен барбекю кът и голяма пещ за печене, създаващи перфектна атмосфера за семейни събирания и приятелски вечери.
Има предвидено място за изграждане на басейн.
Гараж с капацитет за две коли, като едната част в момента се използва като работилница.
Локация:
Намира в центъра на квартал Аспарухово, само на 5 минути пеша от плажа и парка.
В близост има множество магазини и удобства, осигуряващи лесен достъп до всичко необходимо.
Кварталът е спокоен, с добра инфраструктура и близост до морския бряг. Тук ще намерите спокойствие, зеленина и удобен достъп до центъра на Варна, което прави района атрактивен както за семейства, така и за инвеститори.
Цена: 580 000 евро отлична инвестиционна възможност с голям потенциал за развитие и доходност. Този имот е идеален избор за тези, които търсят простор, удобства и отлична локация.
Снимки на етажите в офиса.
Тел. за контакт: 0878 599 399 Искра Вълкова
За повече информация моля звънете на посочения телефон. С удоволствие ще Ви отговорим.
Можете да разчитате на екипа на ЕСТЕЙТ Груп от първият оглед до успешният финал на Вашата сделка. Ние ще бъдем с Вас и гарантираме коректно, компетентно и професионално отношение, защита на финансовият Ви интерес, както и изрядност на документацията, след проверка на собствеността.
При нужда от кредитиране осигуряваме съдействие и консултации с водещите банки, както и преференциални условия за нашите клиенти.
Виж всички обяви в estategroup2024.bazar.bg или тук



