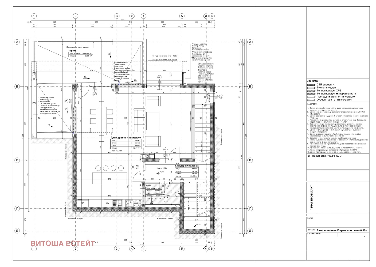
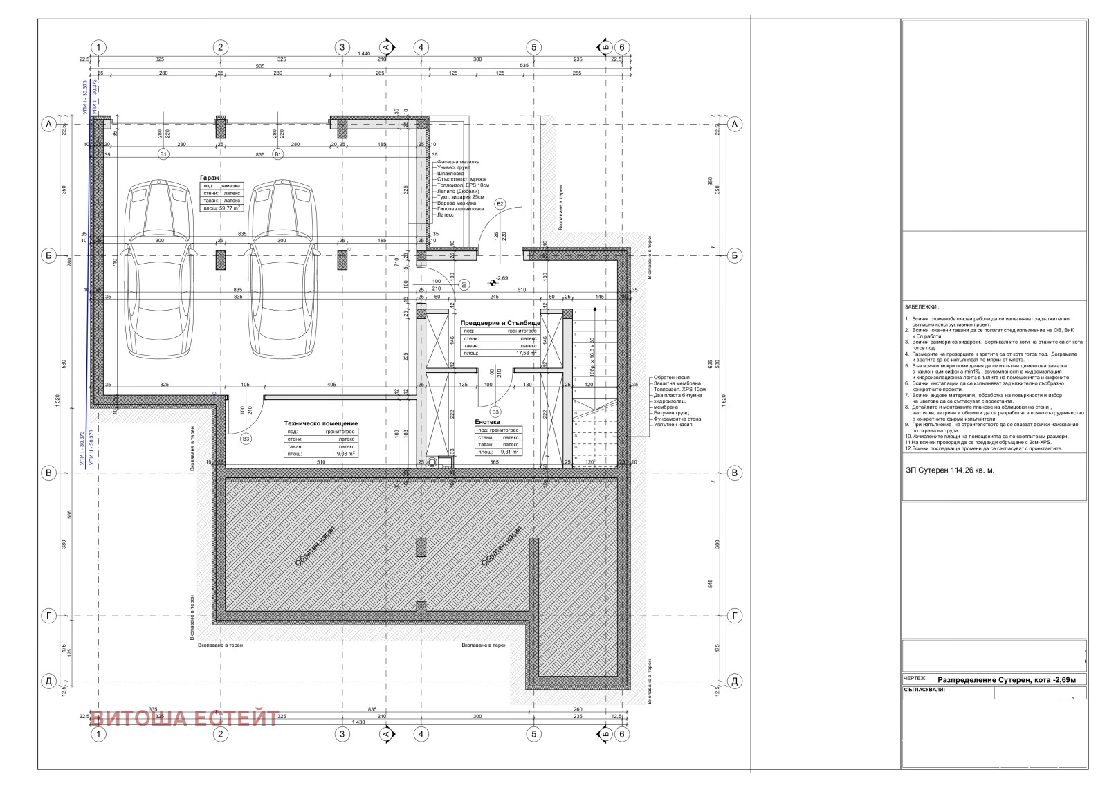
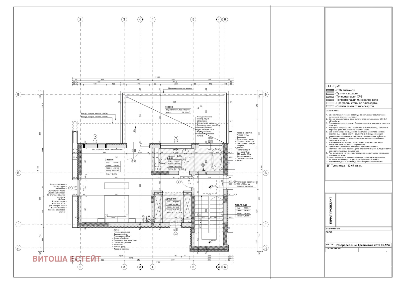
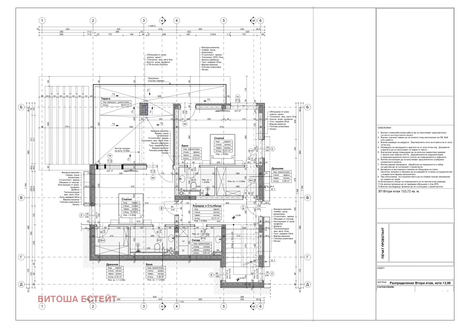
ЕКСКЛУЗИВНО ПРЕДЛОЖЕНИЕ!!! Предлагаме Ви един уникален имот в бързоразвиващото се с. Белащица. Къщата е на едно от малкото места предлагащи прекрасна панорама към гр. Пловдив. Състои се от: НИВО СУТЕРЕН - двоен гараж, склад, гардеробно, преддверие и стълбище; ПЪРВИ ТЕАЖ - дневна с трапезария и кухнески бокс, кабинет/спалня, баня с тоалетна, панорамна тераса, стълбище; ВТОРИ ЕТАЖ - две спални, всяка с баня и тоялетна и гардеробно, склад, панорамна тераса, стълбище; ТРЕТИ ЕТАЖ - две спални, всяка с баня и тоялетна и гардеробно, склад, панорамна тераса, стълбище; Отоплението е предвидено с термопомпа и подово. Много високо ниво на изпълниение на строителството. Къщата ще бъде завършена и въведена в експлоатация до края на 2025 год., в степен до замазка и мазилка и направена вертикална планировка по проект.
Съдействие за ипотечен кредит, предварително одобрение в рамките на два дни, рефинансиране!! Доверете се на нашия дългогодишен опит, АГЕНЦИЯ 'ВИТОША ЕСТЕЙТ' - основана 2006г. За още подобни, ПОДБРАНИ и ПРОВЕРЕНИ оферти само на www.vitoshaestate.com



