Важно: Къщата е новострояща се, с възможност за избор на материали и довършителни работи от страна на купувача до завършването ѝ. Проектът ще бъде предаден по БДС, с опция за довършване до ключ .
Съвременен дом с характер, гъвкави възможности за персонализация и стратегическа локация с уникална панорама.
Параметри на имота:
РЗП (разгъната застроена площ): 211 кв.м
Застроена площ: 118 кв.м
Двор: 446 кв.м ограден и озеленен
Басейн (дължина: 6350 мм, ширина: 3050 мм, дълбочина:1400мм.): 20м3
Гараж (монолитен): 29 кв.м
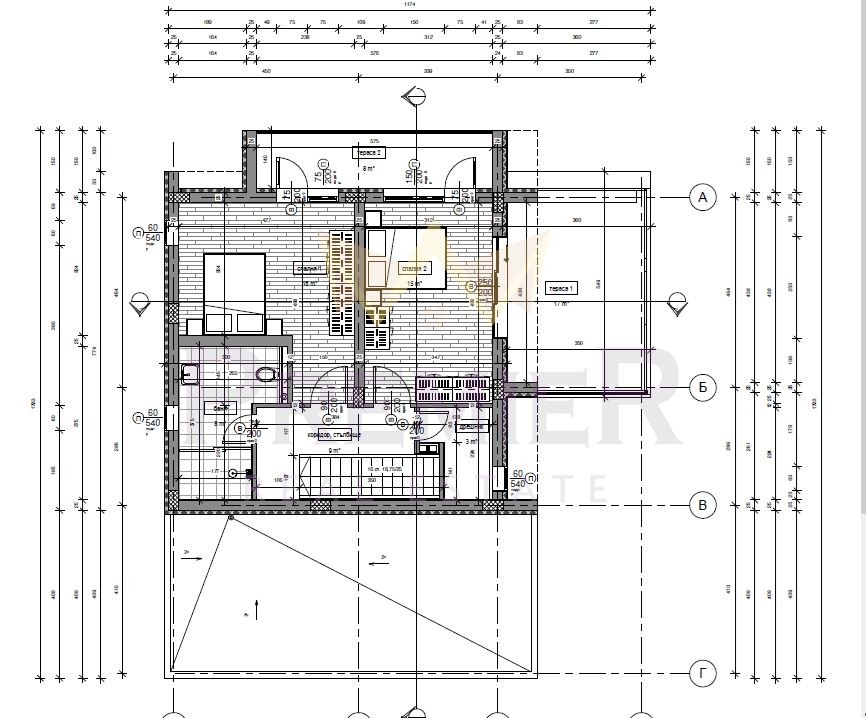
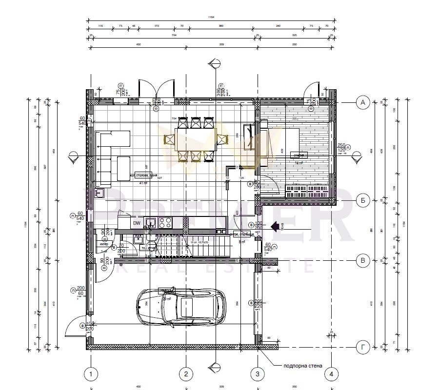
Разпределение по етажи:
Първи етаж:
Просторна трапезария с кухня
Спалня
Баня с тоалетна
Килер
Гараж с топла връзка
Покрита веранда с прекрасна панорама
Втори етаж:
Две светли спални с изглед към морето и околността
Баня с тоалетна
Килер, дрешник
Две тераси
Технически предимства:
Висококачествено монолитно строителство от утвърден инвеститор
Троен стъклопакет, PVC дограма с отлична изолация
Камина в дневната
Енергийно ефективна конструкция и модерни технологии
Асфалтов достъп
Локация:
Спокойна и комуникативна част на гр. Балчик- престижен район
Само на минути от курорт Албена, голф игрища, ресторанти и магазини
Инвестиционен потенциал:
Имот с растяща стойност
Подходящ за постоянно обитаване или отдаване под наем (висока доходност)
Район с постоянно търсене на луксозни и ваканционни имоти
Схема на плащане:
Гъвкави схеми на плащане
Съвременен дом с характер, гъвкави възможности за персонализация и стратегическа локация с уникална панорама.
При интерес се свържете с нас на посочения телефонен номер и цитирайте кода на обявата. Код на обявата: 371394
Виж всички обяви в premierbalchik.bazar.bg или тук






