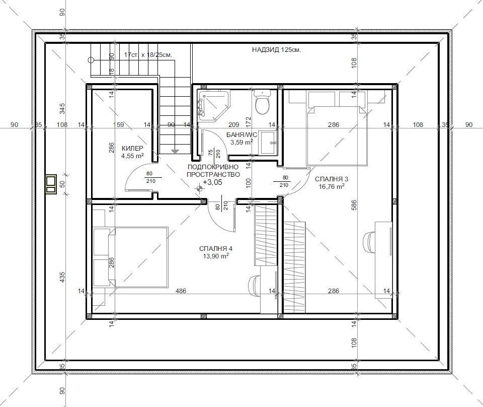
Първият етаж се състои от просторна дневна с кухненски бокс и трапезария (39,6 кв.м), с излаз на широка веранда (22 кв.м), две спални (по 12,65 кв.м всяка), коридор (10,11 кв.м) и голяма баня с тоалетна (6,65 кв.м). Изложението е юг/запад/североизток. Предвидено е и подпокривно пространство с височина 2.8 м, с площ 50 кв.м, с изводи за вода, където могат да се изградят допълнително още две спални (13,9 кв.м и 16,76 кв.м), баня с тоалетна (3,59 кв.м) и килер (4,55 кв.м).
Къщата се продава необзаведена, завършена до степен БДС, с поставена ПВЦ дограма. В момента е на етап на строителство издаден Акт 14. Ще бъде въведена в експлоатация до края на 2025 г. Налични са електричество, вода и септична яма в имота. Ще бъде монтирана инсталация за термопомпа с изводи в цялата къща, както и подово отопление на първия етаж. Къщата е построена върху парцел с площ 559 кв.м по скица, като са предвидени две открити паркоместа в двора.
Приселци е село в Североизточна България, област Варна, община Аврен. Разположено е на източните скатове на Авренското плато, на 4 км от село Близнаци, на 6 км от курортно селище Камчия и на 15 км от гр. Варна, с много добра пътно-транспортна връзка. През него минава главният път за гр. Бургас. Налични са цифрова телефонна централа, център за информационно обслужване на населението, интернет услуги, пощенски клон, добре изградена водопроводна мрежа, две бензиностанции, газстанция, кабелна телевизия, ханът на Хаджи Кольо, воден басейн Рибарника, читалище, детски танцов състав, библиотека, център за спешна и неотложна медицинска помощ, 2 лекарски практики, аптека, ОУ Петър Берон с функциониращ модерен компютърен кабинет, ДГ Щурче.
Оферта 0220162
Виж всички обяви в varnatrend.bazar.bg или тук
        
       
         
         
         
         
         
         
         
         
         
         
         
         
         
         
         
         
         
             
             
             
             
             
             
             
             
             
             
             
             
             
             
             
             
            






