БЕЗ КОМИСИОН ЗА КЛИЕНТИ НА АГЕНЦИЯТА!!!
Cozy Home Agency Ви представя самостоятелна къща в модерен комплекс от еднофамилни домове, само на минути от София в тишината и уюта на с. Гурмазово.
-Безкомпромисно качество на строителство, простор, собствен двор и термопомпена система дом, който предлага повече от квадратура: предлага начин на живот.
Къщата е в процес на строеж, с планирано завършване през 2026 г.
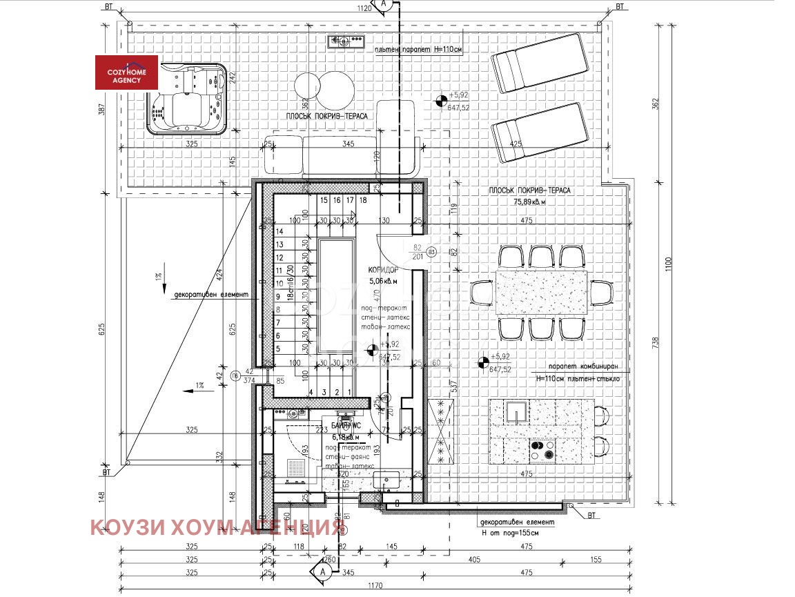
-328 кв.м. РЗП, функционално разпределени на два етажа + покривна тераса, разположени върху самостоятелен парцел от 518 кв.м.
Разпределение:
-Първи етаж:
Отворено пространство дневна + трапезария + кухня (59 кв.м.) с директен излаз към двора;
Антре и коридор;
Котелно помещение и мокро помещение/сауна;
Баня с тоалетна;
Гараж с топла връзка към къщата (18 кв.м.)
-Втори етаж:
Родителска спалня с дрешник (26 кв.м.) и просторна баня (10 кв.м.)
Две спални по 15.65 кв.м. идеални за деца, кабинет или гости;
Допълнителна баня с тоалетна;
Енергийна ефективност и комфорт:
Термопомпена система за отопление и охлаждане
Подово отопление в цялата къща
Предвидена покривна тераса за допълнително пространство и релакс
-Идеалното място за семейство, което цени уюта, пространството и близостта до природата, без да се отказва от удобствата на града.
Оферта 380
Свържете се с нас за да организираме Вашия оглед: 0882424017 Бирсен Шукриева
Посетете нашия сайт и разгледайте други подобни имоти: www.cozyhomeagency.com





