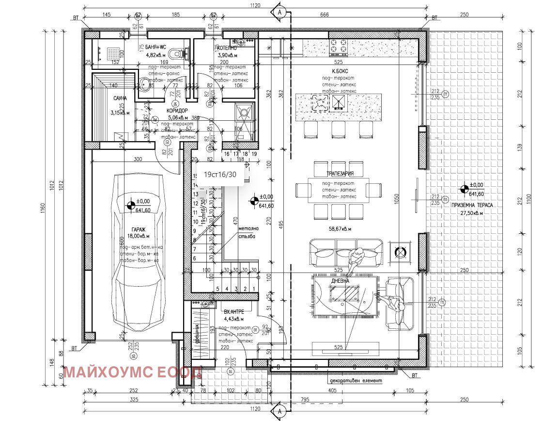
Предлагаме за продажба нова еднофамилна къща в етап на завършване, разположена в тихата и предпочитана част на с. Гурмазово, само на минути от София.
Разгърната застроена площ: 206 кв.м
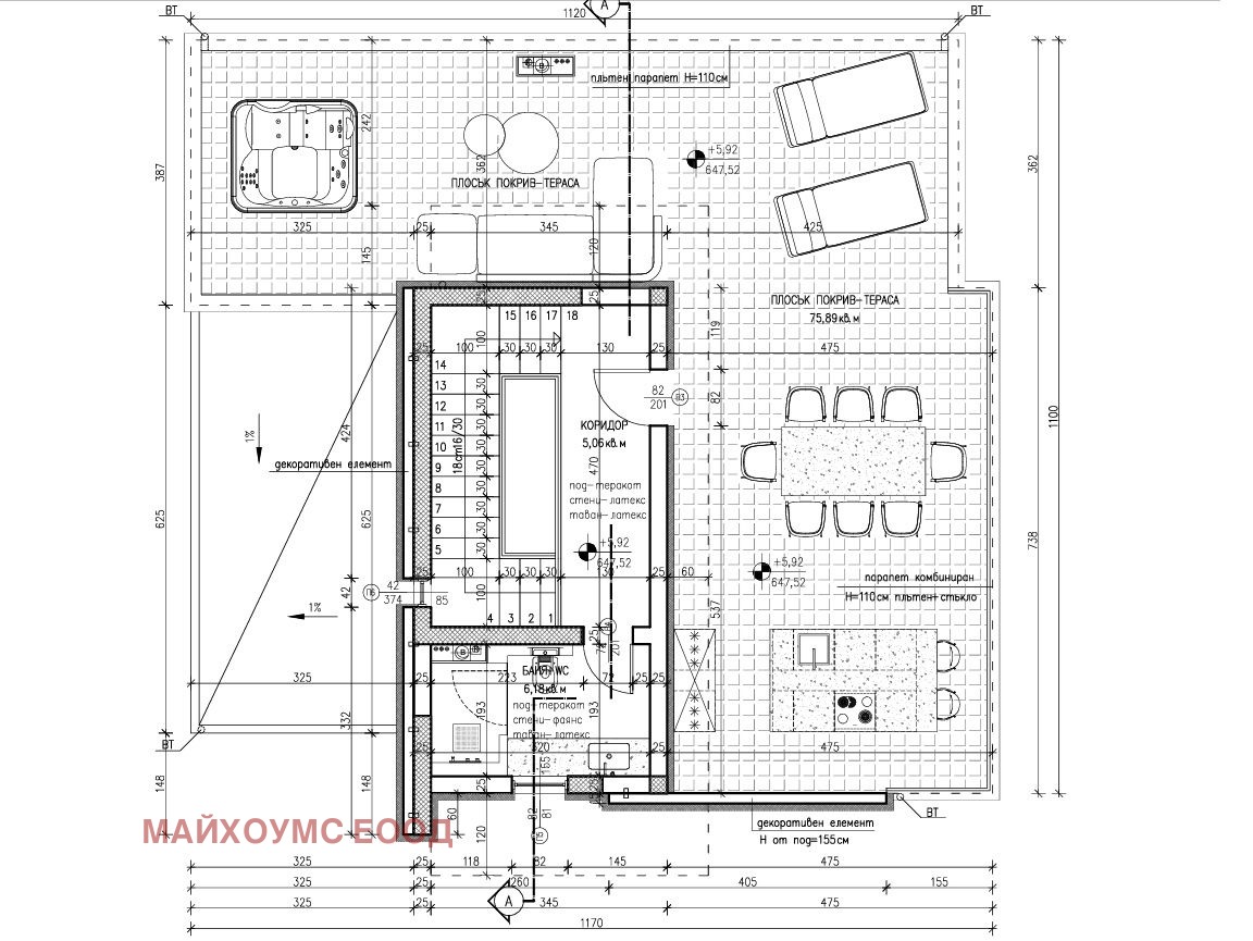
Покривна тераса: 120 кв.м
Парцел: 581 кв.м.
Разпределение:
Първи етаж - просторна дневна 50 кв.м., с възможност за обособяване на кухня и трапезария, баня, котелно, склад.
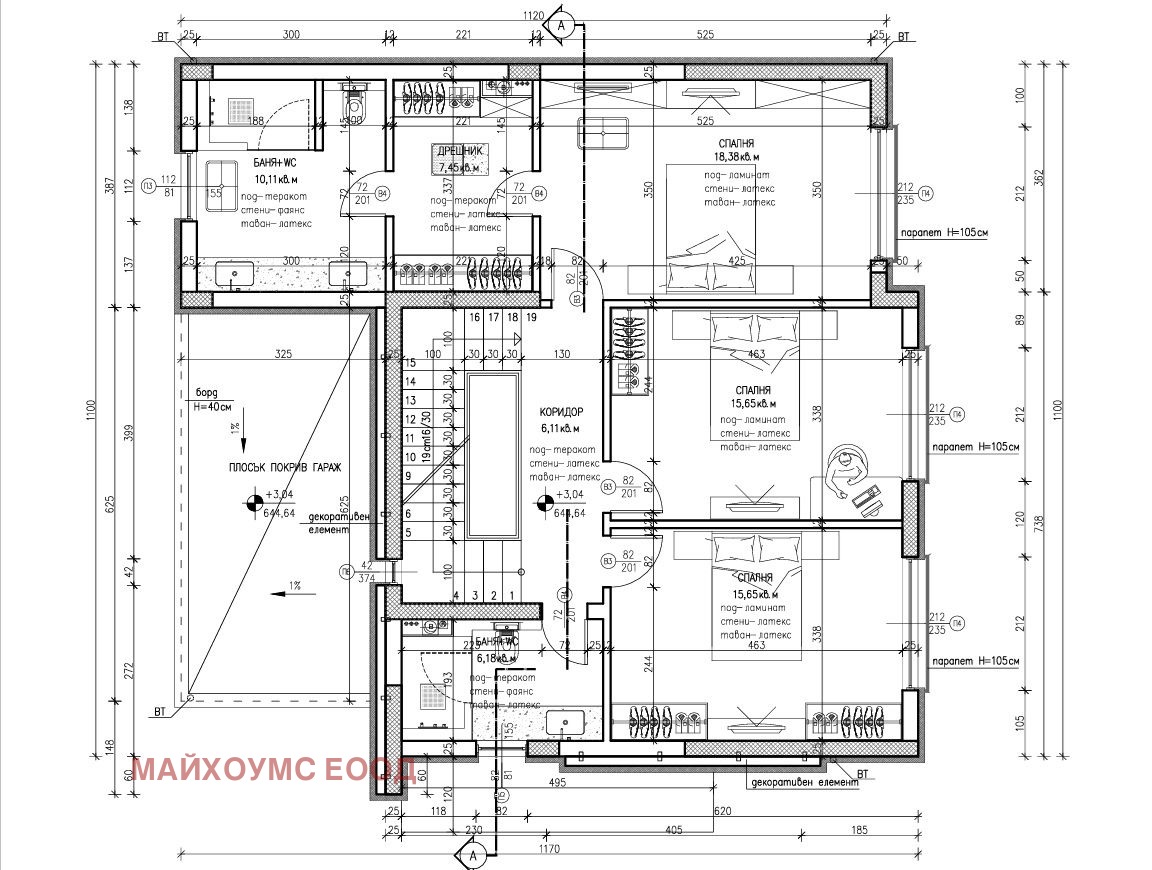
Втори етаж - три спални с площ съответно 16, 16, 18 кв.м., едната от които с дрешник и баня, втора баня на етажа.
Тераса на покрива с възможност за обособяване на кът за отдих
Гараж + две външни парко места
Основни характеристики: Високо ефективна сграда Енергиен клас А
Плосък покрив с топло- и хидроизолация
Немска PVC дограма висок клас, с отлична шумо- и топлоизолация
Подово отопление във всички помещения
Изградена инсталация за фотоволтаици
Зарядна станция за електромобил в гаража
Възможност за завършване 'до ключ' по избор на клиента. АКТ 16 юни 2026г.
Имотът се намира в спокоен, но добре развит район, с чист въздух и бърз достъп до столицата.
Подходящ както за целогодишно живеене, така и за инвестиция.
Свържете се с нас за оглед и повече информация.
Възможност за съдействие при довършителни работи и финансиране.
Елица Петкова 0877427717
Виж всички обяви в myhomesbg.bazar.bg или тук
        
       
         
         
         
         
         
         
             
             
             
             
             
            






