Комплексът се намира в близост до автобусна спирка и има удобен достъп до Околовръстен път. В непосредствена близост се намират супермаркети, множество детски градини, училища, ресторанти и малки павилиони.Бутиков затворен комплекс от 6 еднофамилни къщи, с практичен и модерен дизайн на отлично място в кв. Драгалевци, София.
Представяме Ви 'къща 3' в затворен комплекс в престижният квартал 'Драгалевци'
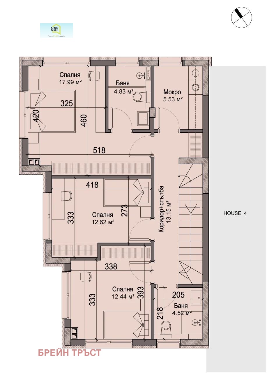
Къщата има просторна дневна с трапезария и кухня, 4 спални и кабинет/ гардеробно, с възможност за обособяване на 5-та спалня. Разполага с 3 бани с WC и отделна тоалетна за гости. Има мокро помещение за пералня и сушилня.
Предвидени са складови помещения, тераси и прекрасни гледки към Витоша и София. Самостоятелен двор с места за барбекю, както и голям гараж на ниво 'сутерен'
Застроена площ: 371 кв.м.
Двор: 189 кв.м.
Цените са без ДДС.
Код на оферта: 6561
За повече информация: 0877214549







