Агенция NEW MAP предлага за продажба къща в строеж на отлична локация в жк Кайлъка, с възможности за персонализиране по време на строежа.
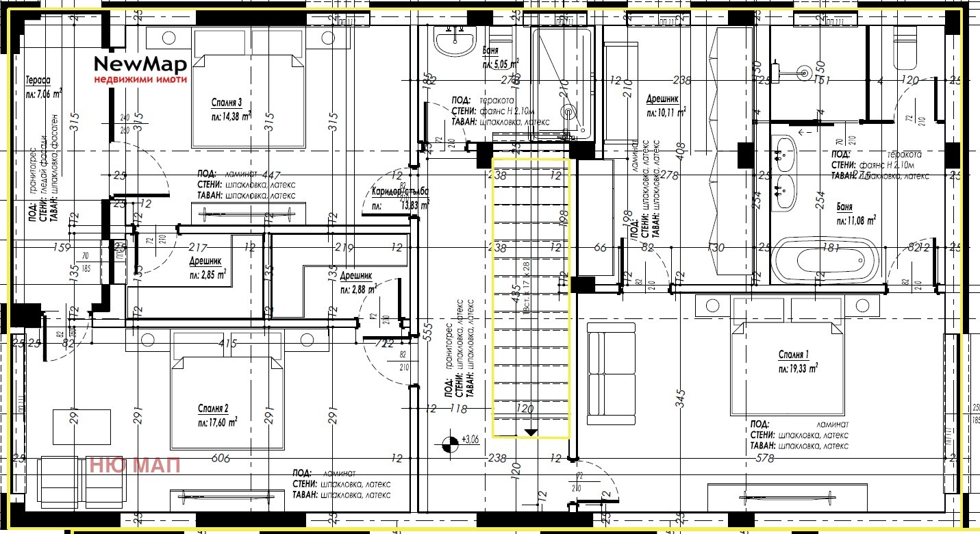
Къщата е с разгъната застроена площ от 252 кв.м., разположена в индивидуален парцел от 376 кв.м. с близнак от идентична къща в тих и спокоен район на квартала, подходящ за целогодишно живеене.
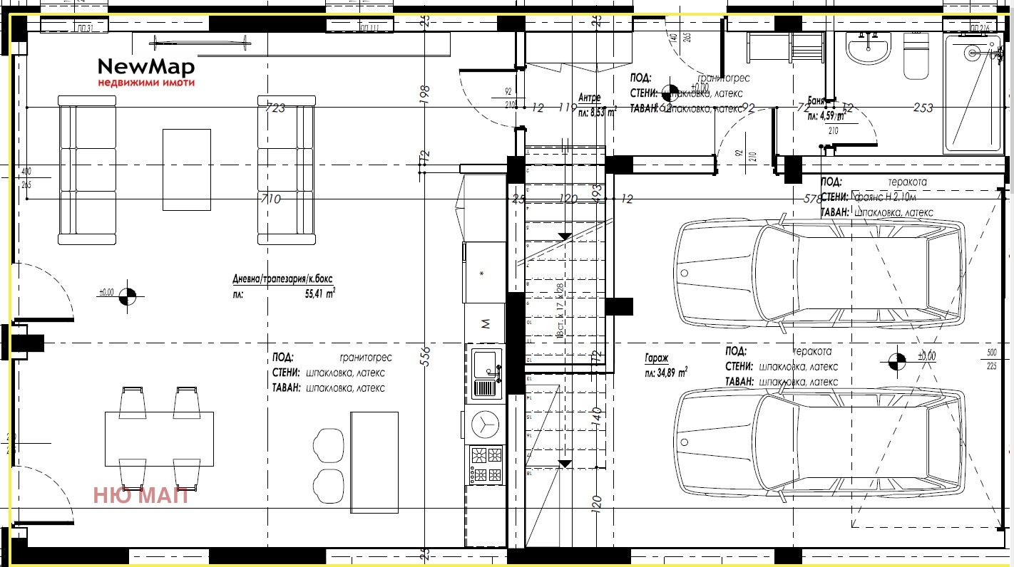
Разпределение на първия етаж: Двоен гараж за автомобили с автоматична секционна врата с дистанционно управление с чиста площ от 35 кв.м., от който се влиза директно в антрето от 9 кв.м.; Дневна с кухненски възел и трапезария с чиста площ от 55,41 кв.м. с френски прозорци за максимален комфорт и осветеност; баня и двураменно вътрешно стълбище към втори етаж.
Разпределение на втори етаж: Родителска спалня с чиста площ от 20 кв.м. с прилежащи дрешник от 10 кв.м. и самостоятелна баня от 11 кв.м. с достатъчно място за широка душ кабина и за вана или джакузи; Две просторни спални всяка от които със самостоятелен дрешник и втора баня, обслужваща двете спални. От тях се излиза на красива тераса от над 7 кв.м.
Изпълнението ще бъде завършено по БДС с покрив от PVC мембрана над 20 см. каменна вата, немска алуминиева дограма от висок клас, входна врата блиндирана, със същия профил, външни стени с 15 см. изолация с мазилка по система на Baumit, в допълнение облицовка по детайл с клинкер или естествен камък плюс HPL плоскости. Отоплението е решено с подово на 1 етаж и изводи за конвектори на 2 етаж. Избор за вида на отопление - газ или термопомпа. Стъклен парапет на терасата за повече светлина в стаите. Масивна елегантна ограда на парцела с дворна врата.
Възможността за персонализиране по договаряне на разпределенията и изпълнението, така че собственика да получи оптимален на нуждите си дом е плюс при договаряне в началото на строителството. Цена на къщата 397 000 евро + цена на парцела от 60 000 евро.
Локацията на имота предлага тишина, чист въздух и бърз достъп до града. Възможност за договаряне на индивидуална схема на плащане до завършване на грубия строеж.
На снимките е състоянието на строежа към 15.03.2026.
Кредитният консултант от нашия партньор CreditLand ще Ви дадe професионален отговор при нужда от кредит за покупка и ремонт. Компетентната му помощ ще Ви осигури гладко и безпроблемно кандидатстване, одобрение, оформяне на документи и усвояване на точно подбрания за Вашите нужди и възможности кредит. Ако всичко това отговаря на Вашите потребности, просто се обадете на 08 89228904, за да насрочим час за подробна среща. Всичко в този живот е лично, затова и ние ще подходим лично и специално!







