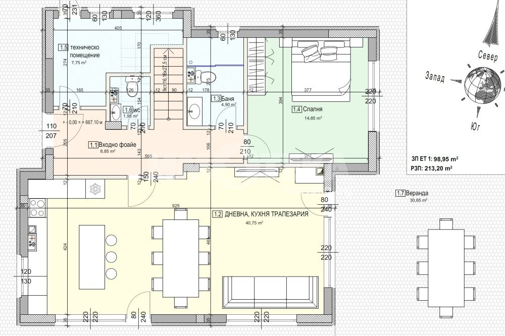
Две новостроящи се къщи в с Хераково. Всяка къща е със застроена площ от 213 кв.м. и разполага със собствен двор с площ от 640 кв.м. Разпределението на къщите е както следва: Първо ниво разполага с просторна дневна с трапезария и кухненски бокс, антре, спалня, техническо помещение, баня с тоалетна, втора тоалетна прекрасна веранда пред дневната; На второ ниво има родителска спалня с дрешник и баня с тоалетна, и тераса, две спални с излаз на втора тераса, баня с тоалетна и мокро помещение. Цена без ДДС.
Тихо и спокойно място с прекрасна панорама.
Монолитно строителство със очаквано удостоверение за въвеждане в експлоатация през лятото на 2026г.
Прекрасно разпределение.
Работим с колеги !
Обади се сега и цитирай този код 660070







