Всяка къща ще бъде завършена на шпакловка и замазка.
Отоплението е предвидено чрез индивидуални котлета на пелети, разположени в самостоятелно техническо помещение.
Комплексът ще разполага със собствен водоизточник.
Въвеждане в експлоатация - 2026г.
Без комисионна от купувач!
Параметри
3 Спални
2 Бани
РЗП: 245 кв.м.
Площ на парцела: 140 кв.м.
Състояние: В строеж
Два гаража
С ключ
С гледка
Фитнес / СПА
Затворен комплекс
С двор
Предимства
Затворен комплекс
Басейн
Видеонаблюдение
Детски площадки
Тих и спокоен район
Бърз достъп до центъра на град София
Чист въздух
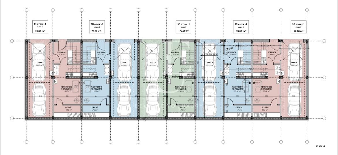
Разпределение
Всяка къща се състои от:
Етаж -1- гараж за две коли, склад, техническо помещение и склад;
Партерен етаж- дневна с кухненски бокс и трапезария, баня с тоалетна и веранда, коридор и стълбище;
Етаж 1- три спални, коридор и баня с тоалетна
Цената е без включен ДДС. Ref. ID: 23521
Виж всички обяви в uniqueestates.bazar.bg или тук
        
       
         
         
         
         
         
         
         
         
         
         
         
             
             
             
             
             
             
             
             
             
             
            






