Unique Estates има удоволствието да Ви представи прекрасна еднофамилна къща само на 35 километра от центъра на София. Районът се отличава с чиста природа, добра инфраструктура и лесен достъп до града. Къщата е разположена на 3 километра от гр.Годеч и е в близост до главен път София-Калотина, което прави локация лесно достъпна и предпочитана за живеене.
Къщата ще бъде завършена по БДС
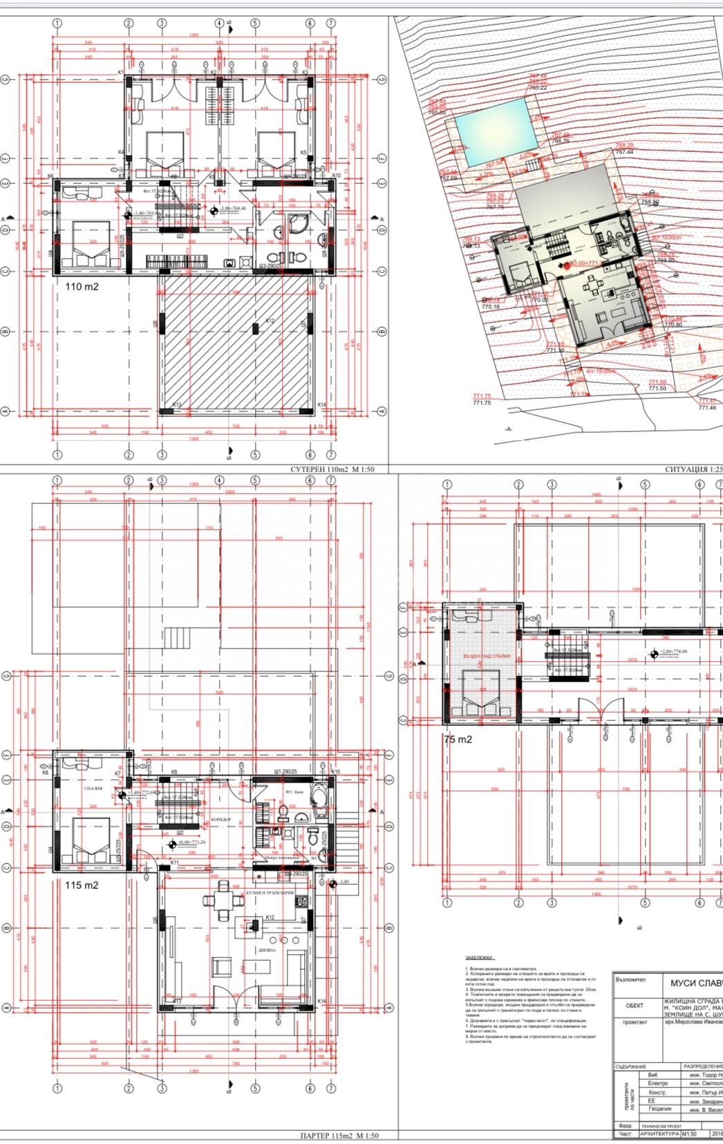
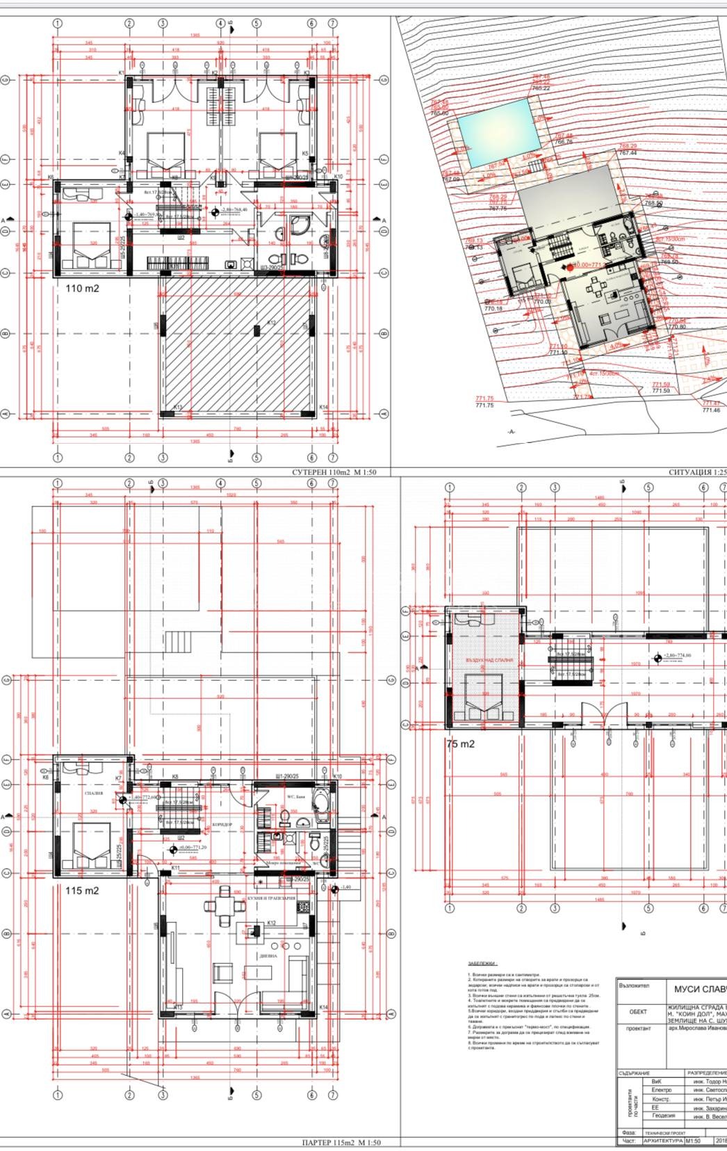
Входно антре, хол с кухня и трапезария, 4 спални, 3 бани с тоалетни, тоалетна за гости, последен етаж с 5 прозореца (70кв.м), 360 градусова гледка, камина с хол, излаз към две тераси всяка по 50кв.м Ref. ID:16708







