'Local Property Expert' има удоволствието да представи на Вашето внимание еднофамилна къща в бански архитектурен дух и панорама към Пирин.
Къщата ще бъде част от три редови къщи, разположени на отлично място в гр. Банско. Къщата ще бъде изградена с висококачествени материали, съчетавайки функционалност, комфорт и съвременна визия. Проектирана на два етажа, тя ще разполага със собствено паркомясто и обособени външни площи. Сред отличителните ѝ черти ще бъдат големите прозорци с панорамен изглед към Пирин, покрив с два комина и фасада, която ще съчетава естествена дървена облицовка и камък.
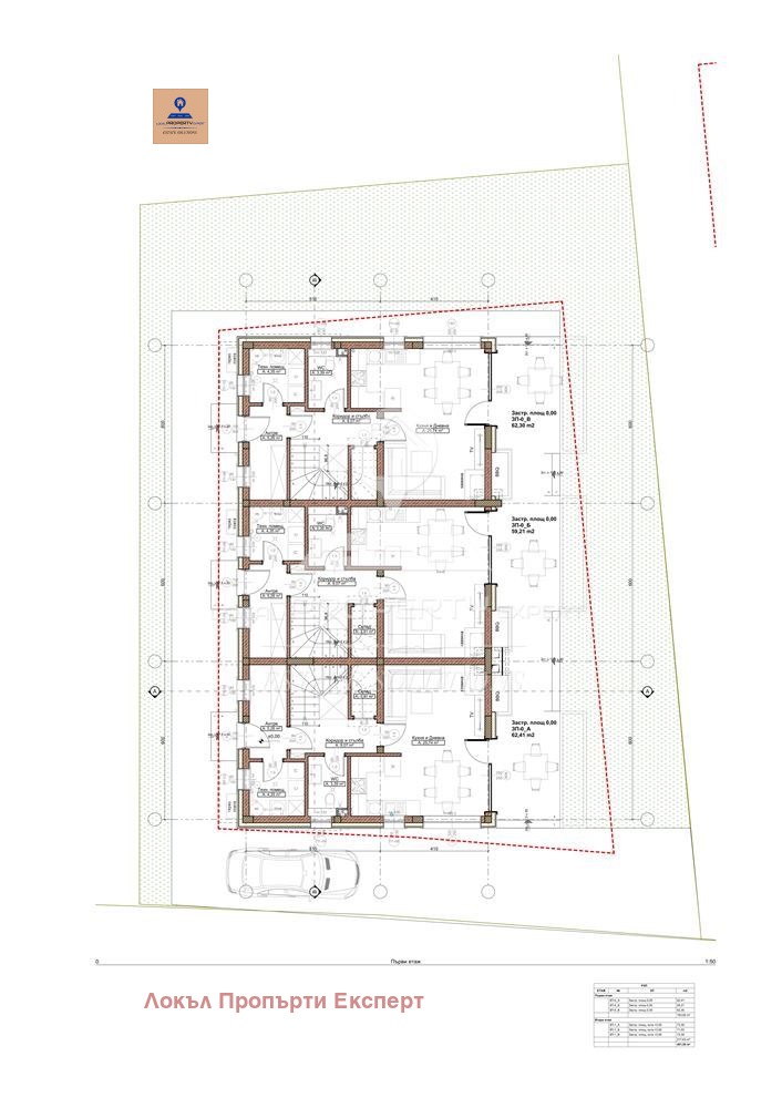
Планираното вътрешно разпределение ще осигури удобство и уют.
На първия етаж ще бъдат разположени входно антре, коридор с вътрешно стълбище, тоалетна, техническо помещение и просторна дневна с камина. В дневната ще има кухненски кът, зона за хранене и отдих, ориентирани на юг с впечатляваща гледка към планината. От нея ще се излиза на тераса с предвидено място за барбекю идеално за почивка и приятни моменти на открито.
На втория етаж ще бъдат разположени две спални, всяка със собствена баня и тоалетна, коридор и лоджия. Къщата ще предлага и подпокривно пространство, което ще може да бъде използвано като практичен склад, сезонно помещение за багаж, спортна екипировка или други нужни вещи.
Към имота ще има прилежащ терен, подходящ за зелено кътче или външна зона за релакс.
Районът е тих и поддържан. В близост се намират спортни и търговски обекти, йога студио, супермаркет, бръснарница, салон за красота и други удобства. Центъра на града е на около 950 метра пешеходно разстояние, а ски лифтът в Банско само на 600 метра.
Локация: https://maps.app.goo.gl/xiuLGPvrjo5RFuJw6
За резервация и сваляне на имота от продажба се депозира стоп депозит в размер на 2000 евро в офис на 'Local Property Expert' или по банкова сметка на агенцията.
Ние от 'Local Property Expert' ще Ви съдействаме през целият процес на продажбата, както и отвъд нея. Можем също да Ви помогнем за осигуряване на банково финансиране, както и всички необходими услуги след продажбата, свързани с имота.
За информация и огледи:
'Local Property Expert'
www.localpropertyexpert.net
брокер: Йорданка Чолева
тел: 0882 611 105, 0888 22 10 10
e-mail: [email protected]
Моля, цитирайте референтен номер на обявата: 363
Виж всички обяви в localpropertyexp.bazar.bg или тук
        
       
         
         
         
         
         
         
         
         
             
             
             
             
             
             
             
            






