В тази оферта представяме КЪЩА със следното разпределение:
Ниво сутерен (56.96 кв.м.) подходящ за складови помещения или зона за отдих
1-во ниво (56.96 кв.м.) просторна дневна, тоалетна за гости, антре
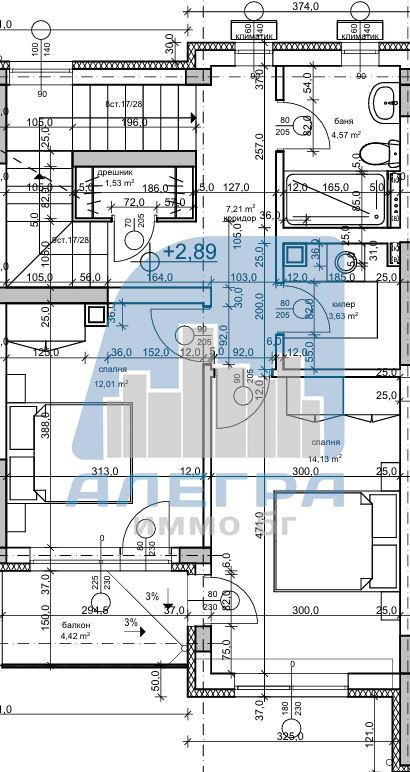
2-ро ниво (65.20 кв.м.) спалня 1 (12.01 кв.м.), спалня 2 (14.13 кв.м.), гардеробна/мокро помещение (3.63 кв.м.), втора гардеробна (1.53кв.м.), баня (4.57 кв.м.), коридор (7.21 кв.м.), балкон (4.66 кв.м.)
3-то ниво (65.20 кв.м.) спалня 3 (12.01 кв.м.), спалня 4 (14.13 кв.м.), гардеробна/мокро помещение (3.63 кв.м.), втора гардеробна (1.53кв.м.), баня (4.57 кв.м.), коридор (7.21 кв.м.), балкон (4.42 кв.м.)
Основни характеристики:
✅ 3 етажа и сутерен
✅ паркомясто към всяка къща
✅ двор към всяка къща
✅ просторни и светли помещения
✅ южно изложение
✅ възможност за индивидуални разпределения
✅ възможност за завършване до ключ
Очакван срок за завършване до 1 година.
Възможност за финансиране с банков кредит!
Районът е забележителен, с богата растителност, разположен изцяло в природна среда, предлагащ отлични условия за уединение и спокойствие в домашни условия. Комуникацията с всички части на столицата се извършва лесно и удобно чрез 🚘 бул. 'Цариградско шосе'. Метростанция Цариградско шосе е само на 10 минути. Къщите са в близост до 🚸 Детска градина, Училище, Супермаркет, Ресторант, Магазини, Аптеки, 🚌 Автобусна спирка.На 5 минути от🌳Езеро Панчарево, паркове и минерални басейни.
Не изпускайте възможността да се сдобиете с вашия нов дом в един от най-развиващите се райони!
За повече информация и огледи, свържете се с Елизабет Миланова:
+359 882515146
---
We offer for sale 🏡 5 row houses with PARKING SPACE in the initial stage of construction, located 10 minutes from the Tsarigradsko Shose metro station. The houses are SOUTH facing and have a total area of 187.10 sq.m. to 193.42 sq.m., distributed over 3 floors and a basement. Spacious and functional, the houses have a living room, 4 bedrooms, 2 bathrooms, a guest toilet and a yard to each house. There is a possibility of individual changes according to the needs of the future owner and turnkey completion.
In this offer we present HOUSE 5 with the following layout:
Basement level (56.96 sq m) suitable for storage or recreation area
1st level (56.96 sq m) spacious living room, guest toilet, entrance hall
2nd level (65.20 sq m) bedroom 1 (12.01 sq m), bedroom 2 (14.13 sq m), dressing room/wet room (3.63 sq m), second dressing room (1.53 sq m), bathroom (4.57 sq m), corridor (7.21 sq m), balcony (4.66 sq m)
3rd level (65.20 sq m) bedroom 3 (12.01 sq m), bedroom 4 (14.13 sq m), dressing room/wet room (3.63 sq m), second dressing room (1.53 sq.m.), bathroom (4.57 sq.m.), corridor (7.21 sq.m.), balcony (4.42 sq.m.)
Main features:
✅ 3 floors and basement
✅ parking space for each house
✅ yard for each house
✅ spacious and bright rooms
✅ southern exposure
✅ possibility of individual distributions
✅ possibility of turnkey completion
Expected completion time up to 1 year.
Possibility of financing with a bank loan!
The area is remarkable, with rich vegetation, located entirely in a natural environment, offering excellent conditions for privacy and tranquility at home. Communication with all parts of the capital is carried out easily and conveniently via 🚘 Tsarigradsko Shose Blvd. The Tsarigradsko Shose metro station is only 10 minutes away. The houses are close to 🚸 Kindergarten, School, Supermarket, Restaurant, Shops, Pharmacies, 🚌 Bus stop. 5 minutes from 🌳Lake Pancharevo, parks and mineral pools.
Don't miss the opportunity to get your new home in one of the most developing areas!
For more information and viewings, contact Elizabeth Milanova:
+359 8882515146
Виж всички обяви в alegraimmo.bazar.bg или тук







