СТАРТИРАЛО СТРОИТЕЛСТВО!! м-ст ЗЕЛЕНИКА!! БЕЗ КОМИСИОН ОТ КУПУВАЧА!!
🏡 INclusive недвижими имоти предлага за продажба НОВ КОМПЛЕКС от къщи в м-ст Зеленика, гр. Варна!
✨ Комплексът включва 3 еднофамилни къщи с РЗП 277 кв.м. всяка, само на 10 минути от центъра на Варна.
🌿 Съвременна архитектура, качествени материали и зелена среда перфектен баланс между спокойствие и удобствата на града.
Парцел: 380 кв.м. към всяка къща, обособен на две нива с веранда и тераси.
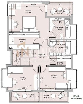
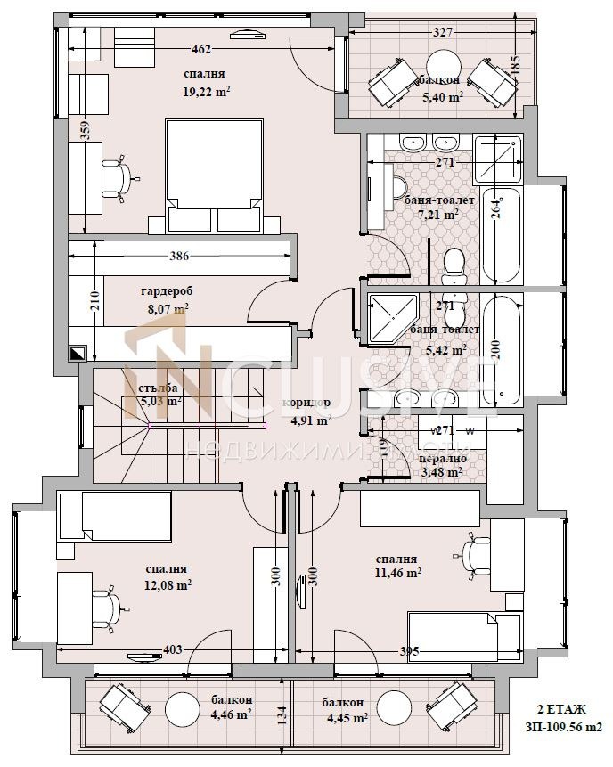
🔹 Разпределение:
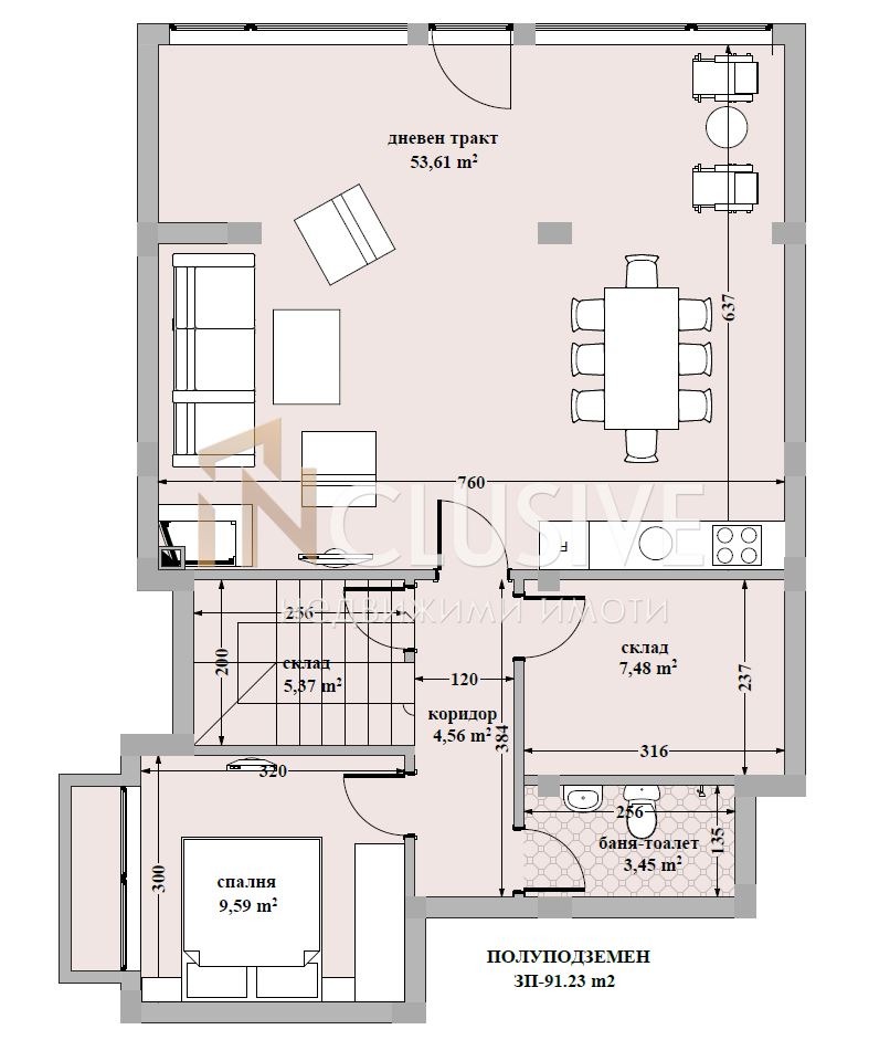
- I ниво (91 кв.м., h=2.60 м.) самостоятелен етаж: дневен тракт с излаз към двор, спалня, баня/WC, склад/сауна/фитнес, машинно помещение.
- II ниво (76 кв.м., h=3.40 м.) антре, просторен дневен тракт (38 кв.м.) с кухня и зона за релакс, кабинет/спалня, баня/WC, веранда (27 кв.м.), паркинг за 2 коли.
- III ниво (110 кв.м., h=3.40 м.) 2 детски стаи с тераса, перално, баня/WC, родителска спалня с гардеробна, собствена баня/WC и покрита тераса.
📌 Предимства:
- Просторни и светли помещения с високи тавани.
- Възможност за камина и отделна зона за развлечения.
- Южно изложение, модерни материали, естествено осветление VELUX.
- Спокойна зелена локация с бърз достъп до центъра.
🏡 Степен на завършеност
✔ Тавани и стени гипсокартон с минерална вата, шпакловани и готови за боя; стени фино измазани.
✔ Подове циментова замазка в стаи и бани.
✔ Електро завършена инсталация, готова за ключове и контакти, възможност за индивидуален проект.
✔ Отопление и климатизация подготовка за подово отопление с термопомпа и инсталация за климатици.
✔ Дограма PVC REHAU, 6-камерна, троен стъклопакет, двустранно отваряне.
✔ Покрив плосък, топлоизолиран (10 см XPS), двупластова хидроизолация, готов за соларни панели и фотоволтаици.
✔ Фасада 12 см EPS топлоизолация, силикат-силиконова мазилка Ceresit, акценти от естествен камък Травертин.
✔ Екстри входна врата Hormann, 3-фазно ел. захранване, изградени огради и пътеки, фасадно осветление, подготовка за видеонаблюдение и автоматизирана поливна система.
✨ Качество, енергийна ефективност и комфорт готово да посрещне Вашия дом!
За повече информация се обадете на посоченият телефон 0875366328 и цитирайте код : 11913







