Представяме новопроектирана двуетажна еднофамилна къща с РЗП 228 кв.м, ситуирана в самостоятелен парцел от 660 кв.м, в спокоен, но перспективен район между Нови хан и София. Местоположението осигурява бърз достъп до АМ Тракия и Цариградско шосе, като съчетава удобството на близостта до града с уюта на тиха, новоразвиваща се среда
Промоционално, преди началото на строително-монтажните дейности подарък за бъдещия собственик: зарядна станция за електромобил.
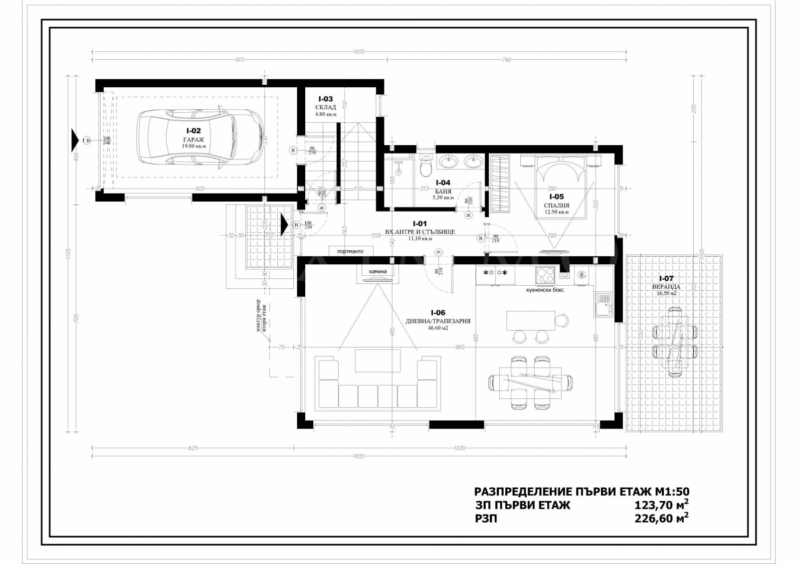
Подробно разпределение:
Първи етаж:
-Просторна дневна с трапезария и кухненски бокс 46.6 кв.м
Светла и функционална, с директен излаз към веранда 16.5 кв.м, подходяща за отдих или външна трапезария.
-Спалня / кабинет 12.5 кв.м
Пространство за гости, работа или хоби зона.
-Баня с тоалетна 5.3 кв.м
-Антре със стълбище и гардеробна ниша 11.1 кв.м
Втори етаж:
-Родителска спалня 19.8 кв.м с:
Гардеробна 4.5 кв.м
Самостоятелна баня 3.8 кв.м
-Две допълнителни спални по 12.5 кв.м
-Обща баня с тоалетна 5.3 кв.м
-Перално помещение 2.4 кв.м
-Просторен коридор 16.3 кв.м, осигуряващ комфортно разпределение и възможност за допълнителни мебели или декоративни елементи
Предимства и технически характеристики:
-Гараж 19.8 кв.м със свързан склад 4.8 кв.м и топла връзка към къщата;
-Инсталация за подово отопление;
-Възможност за газова инсталация или термопомпа;
-Собствена пречиствателна станция за отпадни води;
-Зарядна станция за електромобил ;
-Две външни паркоместа;
-Голям озеленен двор близо 600 кв.м, с възможност за изграждане на басейн, градина или детска зона;
-Модерен архитектурен стил с прав покрив, изчистена геометрия и функционално планиране, подходящ за поставяне на соларни панели;
-Възможност за персонализация на проекта преди началото на строителството бъдещият собственик може да направи промени в разпределението и детайли от интериора според личните си предпочитания.
Строителните ...
За повече информация свържете се с нас и цитирайте референтния номер на имота. Моля, кажете, че сте видeли обявата в този сайт.
Референтен номер: Kbs 131578
Тел: 0882 851 211, 02 401 80 11
Отговорен брокер:Иван Йорданов
Без комисиона от купувача
Виж всички обяви в luximmo.bazar.bg или тук
        
       
         
         
         
         
         
         
         
             
             
             
             
             
             
            






