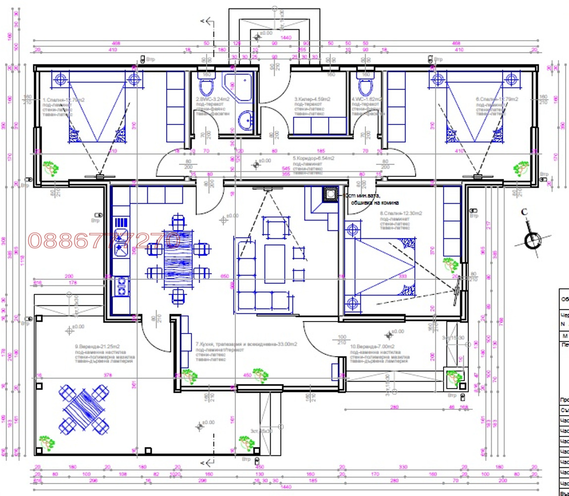
Нова къща, завършена по БДС и въведена в експлоатация. Подът е на замазка, а стените и таваните са боядисани с латекс. Предоставяме и интериорни врати.
Къщата на площ от 128 м2 разполага с три спални, просторен хол/трапезария с кухненски кът. Пространството е оптимално разпределено за най-голяма функционалност и комфорт. Има два санитарни възела и веранда.
ФУНКЦИОНАЛНО ОБОСОБЕНИ ЧАСТИ
Кухня, трапезария и всекидневна, Спалня 1, Спалня 2, Спалня 3, Баня и WC, WC, Килер, Коридор, Веранда 1, Веранда 2.







