Представяме ви, проект за нова къща в живописното село Пчелище, предлагайки ви уникална възможност за създаване на уютен и модерен дом, съчетаващ комфорт и функционалност. С обща разгъната застроена площ от 187.98 кв.м., тази къща е проектирана така, че да осигури максимално удобство и простор за своите обитатели. Крайният срок за завършване е юни 2026 г. Схемата за плащане е 30% първоначална вноска и 70% при издадено Удостоверение за въвеждане в експлоатация.
РАЗПРЕДЕЛНИЕ
Първи етаж (90.71 кв.м.):
Просторна кухня, която плавно преминава в дневна-трапезария, идеална за семейни събирания и забавления;
Удобна спалня с гардеробна, предоставяща достатъчно място за съхранение;
Складово помещение срещу кухнята за допълнително пространство за съхранение;
Баня с тоалетна на замазка.
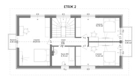
Втори етаж (97.27 кв.м.):
Три светли и просторни спални с балкони, всяка от които може да бъде персонализирана според вашите предпочитания;
Втора баня с тоалетна, също на замазка;
Довършителни работи:
Стените са изградени с висококачествени тухли Porotherm с дебелина 25 см., осигуряващи отлична топлоизолация; Вътрешните стени са с тухли Porotherm 12см
Външна изолация EPS с висок клас силиконова мазилка на Röfix;
Вътрешната изолация и гипсокартон на конструкция осигуряват комфортна среда през всички сезони.
Покрив:
Двускатен покрив с безшевни улуци с подпокривна изолация, която допринася за енергийната ефективност на дома;
Висококачествени безшевни улуци, които гарантират надеждно отвеждане на водата;
Цистерна за събиране на дъждовна вода, готова за употреба, с допълнителен извод за захранване при необходимост.
Двор:
Капково напояване по цялата ограда и поливна система за райграс и насаждения, което осигурява лесна поддръжка на зелените площи;
Изводи на тапа за допълнителни отклонения при необходимост.
Интериор:
7 камерна PVC дограма с възможност за избор на цвят;
Подово отопление с изводи и радиатори на тапа;
Циментова замазка след подовото и гранитогрес за подова настилка;
Шпакловани и боядисани стени с цвят по ваш избор;
Монтирани врати с цвят по избор и блиндирана входна врата с цвят по избор;
Вградени кабели за интернет и телевизия, както и за 'Smart Home' и охранителна система, които правят дома ви модерен и безопасен;
Предварително заложени изводи за климатици, готови за монтаж при нужда.
Тази къща в село Пчелище е перфектният избор за тези, които търсят съвременен комфорт и спокойствие сред природата. Със своето внимателно планирано разпределение и висококачествени материали, тя предлага всичко необходимо за един уютен и функционален дом.
В цената не са включени: басейн, мебели и електроуреди.
Начин на плащане: 20 % на предварителен договор и 80 % при издаден акт 16







