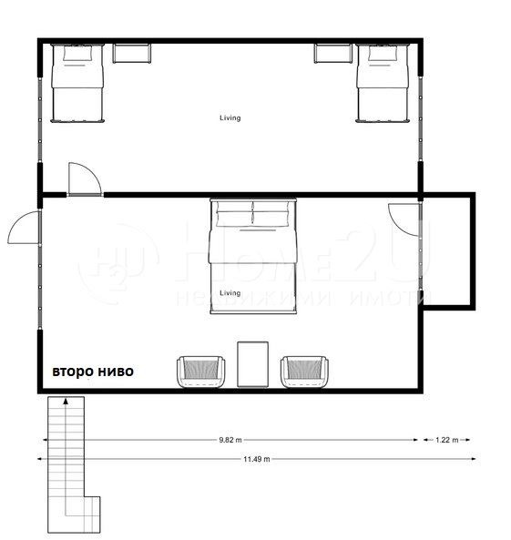
Представяме Ви с голямо удоволствие вила в един от най-предпочитаните райони в Пловдивска област - а именно село Бачково! Къщата е подходяща за ваканционен имот, отдаване за нощувки и е едно невероятно място за почивка от шумната градска среда. Разполага с двор на три нива , като на най-горното имаме зона за отдих и лятно барбекю със спиращи дъха гледки. Жилището има външна изолация и сменен покрив с положена каменна вата, а отоплението е подсигурено от камина на дърва и радиаторите към нея във всяка стая. Имотът има следното функционално разпределение: на първо ниво - входно антре, спалня, всекидневна с кухненски бокс и баня с тоалетна; на второ ниво - две спални , като от едната имаме както излаз на тераса с уникална гледка, така и излаз към горния двор, където се намира зоната за отдих и лятното барбекю. Вилата е свързана с канализацията, а Ел и ВиК инсталациите са сменени.
За Ваше улеснение прилагаме схема с разпределение, а за повече информация и огледи се обадете на посочения телефон и цитирайте следния код: 108543
Виж всички обяви в home2u5.bazar.bg или тук







